Where
  • Angola, Uíge
  • Bangladesh, Dhaka
  • Bangladesh, Sylhet
  • Bangladesh, Tanguar Haor
  • Brazil, São Paulo
  • Chile, Iquique
  • Egypt, Luxor
  • Ethiopia, Addis Ababa
  • Ghana, Accra
  • Ghana, Tema
  • Ghana, Tema Manhean
  • Guinee, Fria
  • India, Ahmedabad
  • India, Chandigarh
  • India, Delhi
  • India, Indore
  • India, Kerala
  • India, Mumbai
  • India, Nalasopara
  • India, Navi Mumbai
  • Iran, multiple
  • Iran, Shushtar
  • Iran, Tehran
  • Italy, Venice
  • Kenya, Nairobi
  • Nigeria, Lagos
  • Peru, Lima
  • Portugal, Evora
  • Rwanda, Kigali
  • Senegal, Dakar
  • Spain, Madrid
  • Tanzania, Dar es Salaam
  • The Netherlands, Delft
  • United Kingdom, London
  • United States, New York
  • United States, Willingboro
When
  • 2020-2029
  • 2010-2019
  • 2000-2009
  • 1990-1999
  • 1980-1989
  • 1970-1979
  • 1960-1969
  • 1950-1959
  • 1940-1949
  • 1930-1939
  • 1920-1929
  • 1910-1919
  • 1900-1909
What
  • high-rise
  • incremental
  • low-rise
  • low income housing
  • mid-rise
  • new town
  • participatory design
  • sites & services
  • slum rehab
Who
  • Marion Achach
  • Tanushree Aggarwal
  • Rafaela Ahsan
  • Jasper Ambagts
  • Trupti Amritwar Vaitla (MESN)
  • Purbi Architects
  • Deepanshu Arneja
  • Tom Avermaete
  • W,F,R. Ballard
  • Ron Barten
  • Michele Bassi
  • A. Bertoud
  • Romy Bijl
  • Lotte Bijwaard
  • Bombay Improvement Trust
  • Fabio Buondonno
  • Ludovica Cassina
  • Daniele Ceragno
  • Jia Fang Chang
  • Henry S. Churchill
  • Bari Cobbina
  • Gioele Colombo
  • Rocio Conesa Sánchez
  • Charles Correa
  • Freya Crijns
  • Ype Cuperus
  • Javier de Alvear Criado
  • Coco de Bok
  • Jose de la Torre
  • Junta Nacional de la Vivienda
  • Margot de Man
  • Jeffrey Deng
  • Kim de Raedt
  • H.A. Derbishire
  • Pepij Determann
  • Anand Dhokay
  • Kamran Diba
  • Jean Dimitrijevic
  • Olivia Dolan
  • Youri Doorn
  • Constantinus A. Doxiadis
  • Jane Drew
  • Jin-Ah Duijghuizen
  • Michel Écochard
  • Marja Elsinga
  • Carmen Espegel
  • Hassan Fathy
  • Federica Fogazzi
  • Arianna Fornasiero
  • Manon Fougerouse
  • Frederick G. Frost
  • Maxwell Fry
  • Lida Chrysi Ganotaki
  • Yasmine Garti
  • Mascha Gerrits
  • Mattia Graaf
  • Greater London Council (GLC)
  • Anna Grenestedt
  • Vanessa Grossman
  • Marcus Grosveld
  • Gruzen & Partners
  • Helen Elizabeth Gyger
  • Shirin Hadi
  • Marietta Haffner
  • Anna Halleran
  • Francisca Hamilton
  • Klaske Havik
  • Katrina Hemingway
  • Dirk van den Heuvel
  • Jeff Hill
  • Bas Hoevenaars
  • S. Holst
  • Maartje Holtslag
  • Housing Development Project Office
  • Genora Jankee
  • Henk Jonkers
  • Michel Kalt
  • Anthéa Karakoullis
  • Hyosik Kim
  • Stanisław Klajs
  • Stephany Knize
  • Bartosz Kobylakiewicz
  • Tessa Koenig Gimeno
  • Mara Kopp
  • Beatrijs Kostelijk
  • Annenies Kraaij
  • Aga Kus
  • Sue Vern Lai
  • Yiyi Lai
  • Isabel Lee
  • Monica Lelieveld
  • Jaime Lerner
  • Levitt & Sons
  • Lieke Lohmeijer
  • Femke Lokhorst
  • Fleur A. Luca
  • Qiaoyun Lu
  • Danai Makri
  • Isabella Månsson
  • Mira Meegens
  • Rahul Mehrotra
  • Andrea Migotto
  • Harald Mooij
  • Julie Moraca
  • Nelson Mota
  • Municipality of Addis Ababa
  • Dennis Musalim
  • Timothy Nelson Stins
  • NGO Red Barna-Ethiopia
  • Gabriel Ogbonna
  • Federico Ortiz Velásquez
  • Mees Paanakker
  • Sameep Padora
  • Santiago Palacio Villa
  • Antonio Paoletti
  • Caspar Pasveer
  • Casper Pasveer
  • V. Phatak
  • Andreea Pirvan
  • PK Das & Associates
  • Daniel Pouradier-Duteil
  • Michelle Provoost
  • Pierijn van der Putt
  • Wido Quist
  • Frank Reitsma
  • Raj Rewal
  • Robert Rigg
  • Robin Ringel
  • Charlotte Robinson
  • Roberto Rocco
  • Laura Sacchetti
  • Francisco Javier Sáenz de Oiza
  • Ramona Scheffer
  • Frank Schnater
  • Sanette Schreurs
  • Tim Schuurman
  • Dr. ir. Mohamad Ali Sedighi
  • Sara Seifert
  • Self-built
  • Zhuo-ming Shia
  • Geneviève Shymanski
  • Manuel Sierra Nava
  • Carlos Silvestre Baquero
  • Mo Smit
  • Christina Soediono
  • Joelle Steendam
  • Marina Tabassum
  • Brook Teklehaimanot Haileselassie
  • Kaspar ter Glane
  • Anteneh Tesfaye Tola
  • Carla Tietzsch
  • Chiara Tobia
  • Fabio Tossutti
  • Paolo Turconi
  • Burnett Turner
  • Unknown
  • Frederique van Andel
  • Ties van Benten
  • Hubert van der Meel
  • Anne van der Meulen
  • Anja van der Watt
  • Marissa van der Weg
  • Jan van de Voort
  • Cassandre van Duinen
  • Dick van Gameren
  • Annemijn van Gurp
  • Mark van Kats
  • Bas van Lenteren
  • Rens van Poppel
  • Rens van Vliet
  • Rohan Varma
  • Stephan Verkuijlen
  • Pierre Vignal
  • Gavin Wallace
  • W.E. Wallis
  • Michel Weill
  • Julian Wijnen
  • Afua Wilcox
  • Ella Wildenberg
  • V. Wilkins
  • Alexander Witkamp
  • Krystian Woźniak
  • Hatice Yilmaz
  • Haobo Zhang
  • Gonzalo Zylberman
E Education
  • Honours Programme
  • Master thesis
  • MSc level
  • student analysis
  • student design
R Research
  • book (chapter)
  • conference paper
  • dissertation
  • exhibition
  • interview
  • journal article
  • lecture
P Practice
  • built
< BACK

A Place to Breathe

An alternative for in-situ redevelopment of Baithi Chawls in Nala Sopara

Student
Date
Keywords
housing strategies, transformation, urban density
Images
Bird-eye view
Image: © Dennis Musalim, MSc3/4 Global Housing Graduation Studio Mumbai
Text

The chosen site for the graduation project demonstrates how the shortage of affordable housing becomes a problem in the Mumbai, how this issue has been responded, and how these actions affect the living quality. The challenge is how to generate an alternative for the provision of affordable housing by taking into account not only the issue of density, but enhancing the living quality of the dwellers. The issue of housing shortage which led to the emergence of squatter settlements has been confronted with various approaches by countries around the globe. Many attempts including slum Up-grading and Slum Rehabilitation Program have been endeavored. Currently, the In-situ redevelopment program is seemed as an affordable example in providing affordable housing since it cut down the land cost for the housing provision. Many one-story row houses, Baithi chawls area, have been seen as a potential property to be redeveloped becoming four to five storeys residential building and built on the same footprint. This arbitrary attempt compromises the dwellers to live in an extremely cramped and dense area.

In addition, the site also illustrates the fact that the present housing solution increases segregation among the inhabitant of the area. Rahmat Nagar, an area located on the south of Oswal Nagari in the east Nala Sopara, clearly shows how the attempts in providing housing without any planning and integration between the government, private sector and the local community, can result a great segregation. People from various income groups can be found in the area. However, the urban fabric of this area suggested these people to live separately according to their income status and there is no urban gesture to unite this segregation. Looking at the larger context, this problematic development is also happening in Mumbai city and cities around the globe. Affordable housing for inclusive development is the theme of the global housing studio. The above-mentioned housing condition illustrate the contradictory instances happening in Mumbai and other cities. Therefore, the graduation project attempts to offer an alternative in-situ redevelopment scheme for inclusive development.

Files
Bird-eye view
Image: © Dennis Musalim, MSc3/4 Global Housing Graduation Studio Mumbai
Ground floor plan
Drawing: © Dennis Musalim, MSc3/4 Global Housing Graduation Studio Mumbai
Masterplan diagram
Drawing: © Dennis Musalim, MSc3/4 Global Housing Graduation Studio Mumbai
Axonometric view
Drawing: © Dennis Musalim, MSc3/4 Global Housing Graduation Studio Mumbai
Axonometric view
Drawing: © Dennis Musalim, MSc3/4 Global Housing Graduation Studio Mumbai
Axonometric view
Drawing: © Dennis Musalim, MSc3/4 Global Housing Graduation Studio Mumbai
Section
Drawing: © Dennis Musalim, MSc3/4 Global Housing Graduation Studio Mumbai
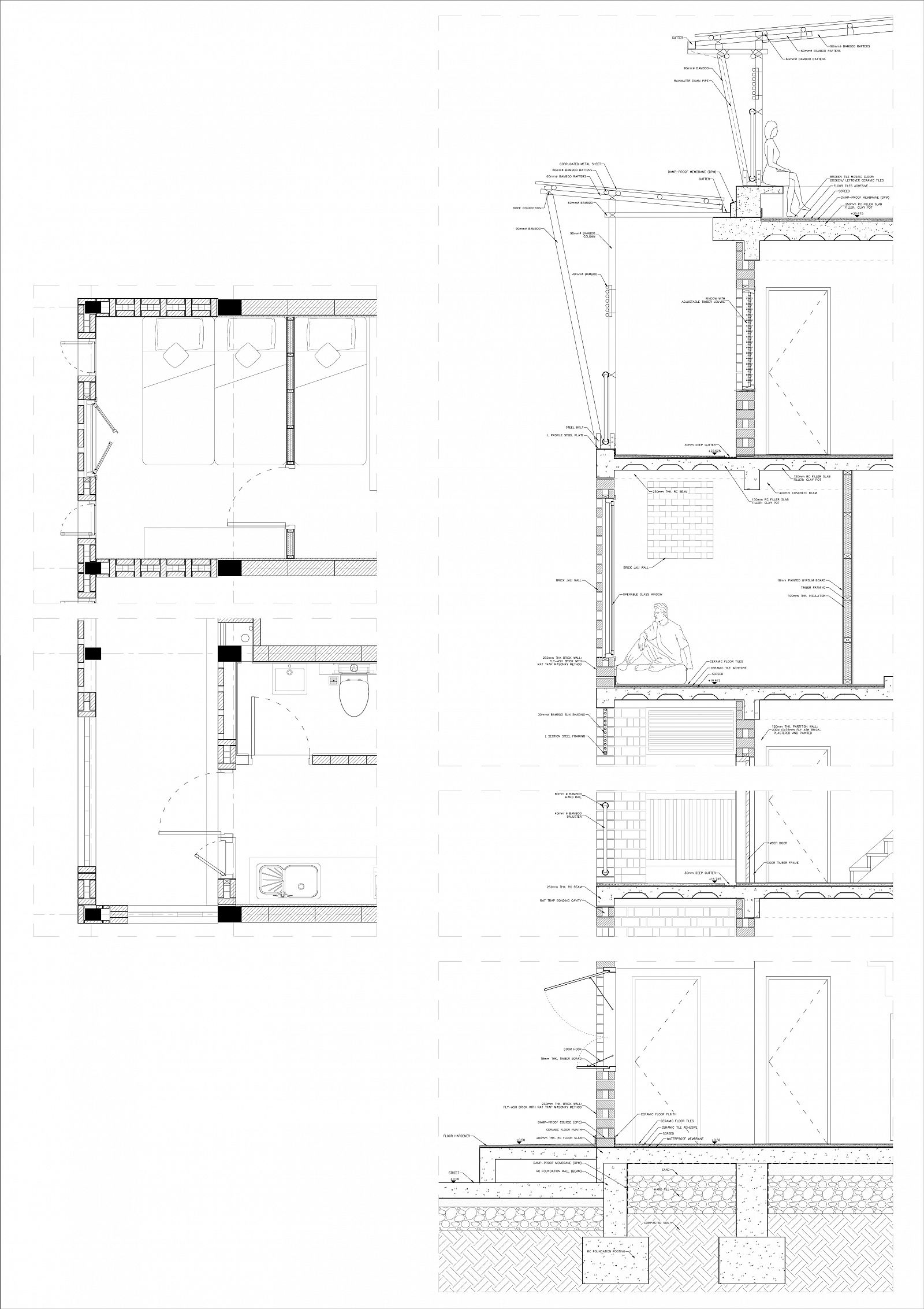
Details
Drawing: © Dennis Musalim, MSc3/4 Global Housing Graduation Studio Mumbai
Intervention and informality
Image: © Dennis Musalim, MSc3/4 Global Housing Graduation Studio Mumbai
Urban life
Image: © Dennis Musalim, MSc3/4 Global Housing Graduation Studio Mumbai
Street
Image: © Dennis Musalim, MSc3/4 Global Housing Graduation Studio Mumbai
Model: © Dennis Musalim, MSc3/4 Global Housing Graduation Studio Mumbai
Model: © Dennis Musalim, MSc3/4 Global Housing Graduation Studio Mumbai
Model: © Dennis Musalim, MSc3/4 Global Housing Graduation Studio Mumbai