Where
  • Angola, Uíge
  • Bangladesh, Dhaka
  • Bangladesh, Sylhet
  • Bangladesh, Tanguar Haor
  • Brazil, São Paulo
  • Chile, Iquique
  • Egypt, Luxor
  • Ethiopia, Addis Ababa
  • Ghana, Accra
  • Ghana, Tema
  • Ghana, Tema Manhean
  • Guinee, Fria
  • India, Ahmedabad
  • India, Chandigarh
  • India, Delhi
  • India, Indore
  • India, Kerala
  • India, Mumbai
  • India, Nalasopara
  • India, Navi Mumbai
  • Iran, multiple
  • Iran, Shushtar
  • Iran, Tehran
  • Italy, Venice
  • Kenya, Nairobi
  • Nigeria, Lagos
  • Peru, Lima
  • Portugal, Evora
  • Rwanda, Kigali
  • Senegal, Dakar
  • Spain, Madrid
  • Tanzania, Dar es Salaam
  • The Netherlands, Delft
  • United Kingdom, London
  • United States, New York
  • United States, Willingboro
When
  • 2020-2029
  • 2010-2019
  • 2000-2009
  • 1990-1999
  • 1980-1989
  • 1970-1979
  • 1960-1969
  • 1950-1959
  • 1940-1949
  • 1930-1939
  • 1920-1929
  • 1910-1919
  • 1900-1909
What
  • high-rise
  • incremental
  • low-rise
  • low income housing
  • mid-rise
  • new town
  • participatory design
  • sites & services
  • slum rehab
Who
  • Marion Achach
  • Tanushree Aggarwal
  • Rafaela Ahsan
  • Jasper Ambagts
  • Trupti Amritwar Vaitla (MESN)
  • Purbi Architects
  • Deepanshu Arneja
  • Tom Avermaete
  • W,F,R. Ballard
  • Ron Barten
  • Michele Bassi
  • A. Bertoud
  • Romy Bijl
  • Lotte Bijwaard
  • Bombay Improvement Trust
  • Fabio Buondonno
  • Ludovica Cassina
  • Daniele Ceragno
  • Jia Fang Chang
  • Henry S. Churchill
  • Bari Cobbina
  • Gioele Colombo
  • Rocio Conesa Sánchez
  • Charles Correa
  • Freya Crijns
  • Ype Cuperus
  • Javier de Alvear Criado
  • Coco de Bok
  • Jose de la Torre
  • Junta Nacional de la Vivienda
  • Margot de Man
  • Jeffrey Deng
  • Kim de Raedt
  • H.A. Derbishire
  • Pepij Determann
  • Anand Dhokay
  • Kamran Diba
  • Jean Dimitrijevic
  • Olivia Dolan
  • Youri Doorn
  • Constantinus A. Doxiadis
  • Jane Drew
  • Jin-Ah Duijghuizen
  • Michel Écochard
  • Marja Elsinga
  • Carmen Espegel
  • Hassan Fathy
  • Federica Fogazzi
  • Arianna Fornasiero
  • Manon Fougerouse
  • Frederick G. Frost
  • Maxwell Fry
  • Lida Chrysi Ganotaki
  • Yasmine Garti
  • Mascha Gerrits
  • Mattia Graaf
  • Greater London Council (GLC)
  • Anna Grenestedt
  • Vanessa Grossman
  • Marcus Grosveld
  • Gruzen & Partners
  • Helen Elizabeth Gyger
  • Shirin Hadi
  • Marietta Haffner
  • Anna Halleran
  • Francisca Hamilton
  • Klaske Havik
  • Katrina Hemingway
  • Dirk van den Heuvel
  • Jeff Hill
  • Bas Hoevenaars
  • S. Holst
  • Maartje Holtslag
  • Housing Development Project Office
  • Genora Jankee
  • Henk Jonkers
  • Michel Kalt
  • Anthéa Karakoullis
  • Hyosik Kim
  • Stanisław Klajs
  • Stephany Knize
  • Bartosz Kobylakiewicz
  • Tessa Koenig Gimeno
  • Mara Kopp
  • Beatrijs Kostelijk
  • Annenies Kraaij
  • Aga Kus
  • Sue Vern Lai
  • Yiyi Lai
  • Isabel Lee
  • Monica Lelieveld
  • Jaime Lerner
  • Levitt & Sons
  • Lieke Lohmeijer
  • Femke Lokhorst
  • Fleur A. Luca
  • Qiaoyun Lu
  • Danai Makri
  • Isabella Månsson
  • Mira Meegens
  • Rahul Mehrotra
  • Andrea Migotto
  • Harald Mooij
  • Julie Moraca
  • Nelson Mota
  • Municipality of Addis Ababa
  • Dennis Musalim
  • Timothy Nelson Stins
  • NGO Red Barna-Ethiopia
  • Gabriel Ogbonna
  • Federico Ortiz Velásquez
  • Mees Paanakker
  • Sameep Padora
  • Santiago Palacio Villa
  • Antonio Paoletti
  • Caspar Pasveer
  • Casper Pasveer
  • V. Phatak
  • Andreea Pirvan
  • PK Das & Associates
  • Daniel Pouradier-Duteil
  • Michelle Provoost
  • Pierijn van der Putt
  • Wido Quist
  • Frank Reitsma
  • Raj Rewal
  • Robert Rigg
  • Robin Ringel
  • Charlotte Robinson
  • Roberto Rocco
  • Laura Sacchetti
  • Francisco Javier Sáenz de Oiza
  • Ramona Scheffer
  • Frank Schnater
  • Sanette Schreurs
  • Tim Schuurman
  • Dr. ir. Mohamad Ali Sedighi
  • Sara Seifert
  • Self-built
  • Zhuo-ming Shia
  • Geneviève Shymanski
  • Manuel Sierra Nava
  • Carlos Silvestre Baquero
  • Mo Smit
  • Christina Soediono
  • Joelle Steendam
  • Marina Tabassum
  • Brook Teklehaimanot Haileselassie
  • Kaspar ter Glane
  • Anteneh Tesfaye Tola
  • Carla Tietzsch
  • Chiara Tobia
  • Fabio Tossutti
  • Paolo Turconi
  • Burnett Turner
  • Unknown
  • Frederique van Andel
  • Ties van Benten
  • Hubert van der Meel
  • Anne van der Meulen
  • Anja van der Watt
  • Marissa van der Weg
  • Jan van de Voort
  • Cassandre van Duinen
  • Dick van Gameren
  • Annemijn van Gurp
  • Mark van Kats
  • Bas van Lenteren
  • Rens van Poppel
  • Rens van Vliet
  • Rohan Varma
  • Stephan Verkuijlen
  • Pierre Vignal
  • Gavin Wallace
  • W.E. Wallis
  • Michel Weill
  • Julian Wijnen
  • Afua Wilcox
  • Ella Wildenberg
  • V. Wilkins
  • Alexander Witkamp
  • Krystian Woźniak
  • Hatice Yilmaz
  • Haobo Zhang
  • Gonzalo Zylberman
E Education
  • Honours Programme
  • Master thesis
  • MSc level
  • student analysis
  • student design
R Research
  • book (chapter)
  • conference paper
  • dissertation
  • exhibition
  • interview
  • journal article
  • lecture
P Practice
  • built
< BACK

Risk, Resettlement, & Renewal

Mitigating the displacement of vulnerable São Paulo residents from areas of ecological risk without proper infrastructure

Date
Keywords
rapid urbanisation
Images
Urban amenities
Drawing: © Geneviève Shymanski, MSc3/4: São Paulo: Repair and Consolidate (2022/2023)
Text

As the Global South continues to rapidly urbanize, finding affordable and sustainable housing solutions is paramount. The Global Housing Graduation studio provides the opportunity to design new housing typologies through environmental and social lenses. São Paulo’s challenges with rapid urbanization and social inequality has left more than a million residents vulnerable to the impacts of water scarcity, lack of public infrastructure, climate, environmental risk, and climate change. Urban expansion during São Paulo’s economic boom in the 1970s led to a considerable increase of illegal land occupations in the city’s peripheries. The development of the informal settlements formed in the peripheries thus superseded the speed at which proper public infrastructure for potable water, sanitation and electricity could be implemented.

Residents in the peripheral neighborhoods occupy open land in areas of varying environmental risk, susceptible to soil degradation, flooding, landslides, and health risks due to waste discharge. They cannot access publicly supplied water or sanitation and must rely on water cisterns, illegal connections or self-made sanitation disposal to acquire the necessary infrastructure to lead a healthy life. These risks, in addition to the future risks of climate change, disproportionally impact those living in informal settlements, due to their social vulnerability and socio-economic status.

Development-induced displacement of residents within informal settlements is enforced by the São Paulo municipal government, to permit the implementation of public infrastructure such as water lines, sanitation, drainage, street paving, and the removal of housing structures in at-risk areas. While the purpose of displacement contributes towards a positive outcome - upgrading neighborhoods with much-needed services, or rehousing residents to safer environments – the social impact of displacement is palpable. Forced displacement may move residents away from their sources of income and social networks, considerably impacting their mental well-being or exposing them to financial precarity. Readaptation to new neighborhoods or lifestyles can also be difficult for residents.

The project seeks to create a balance between social and climate resiliency to address the challenges of environmental risk and resettlement. The project proposes a new social housing system, built on the principles of clustering and the Radburn Plan, to achieve an urban design which integrates public space with rainwater flows, public infrastructure, and housing. The project location, Jardim Campinas in Grajaú, São Paulo, is used as a framework for the urban system to rehouse displaced residents from various communities onto one site. The socio-ecological design approach is implemented at each scale – urban plan, sector, cluster, and dwelling unit. The design aim is a renewal of the urban fabric, by building upon existing social and ecological networks to reinvigorate social connections and relationships between natural and built environment.

Files
Urban amenities
Drawing: © Geneviève Shymanski, MSc3/4: São Paulo: Repair and Consolidate (2022/2023)
Master plan
Drawing: © Geneviève Shymanski, MSc3/4: São Paulo: Repair and Consolidate (2022/2023)
Community continuity
Drawing: © Geneviève Shymanski, MSc3/4: São Paulo: Repair and Consolidate (2022/2023)
Portico typology
Drawing: © Geneviève Shymanski, MSc3/4: São Paulo: Repair and Consolidate (2022/2023)
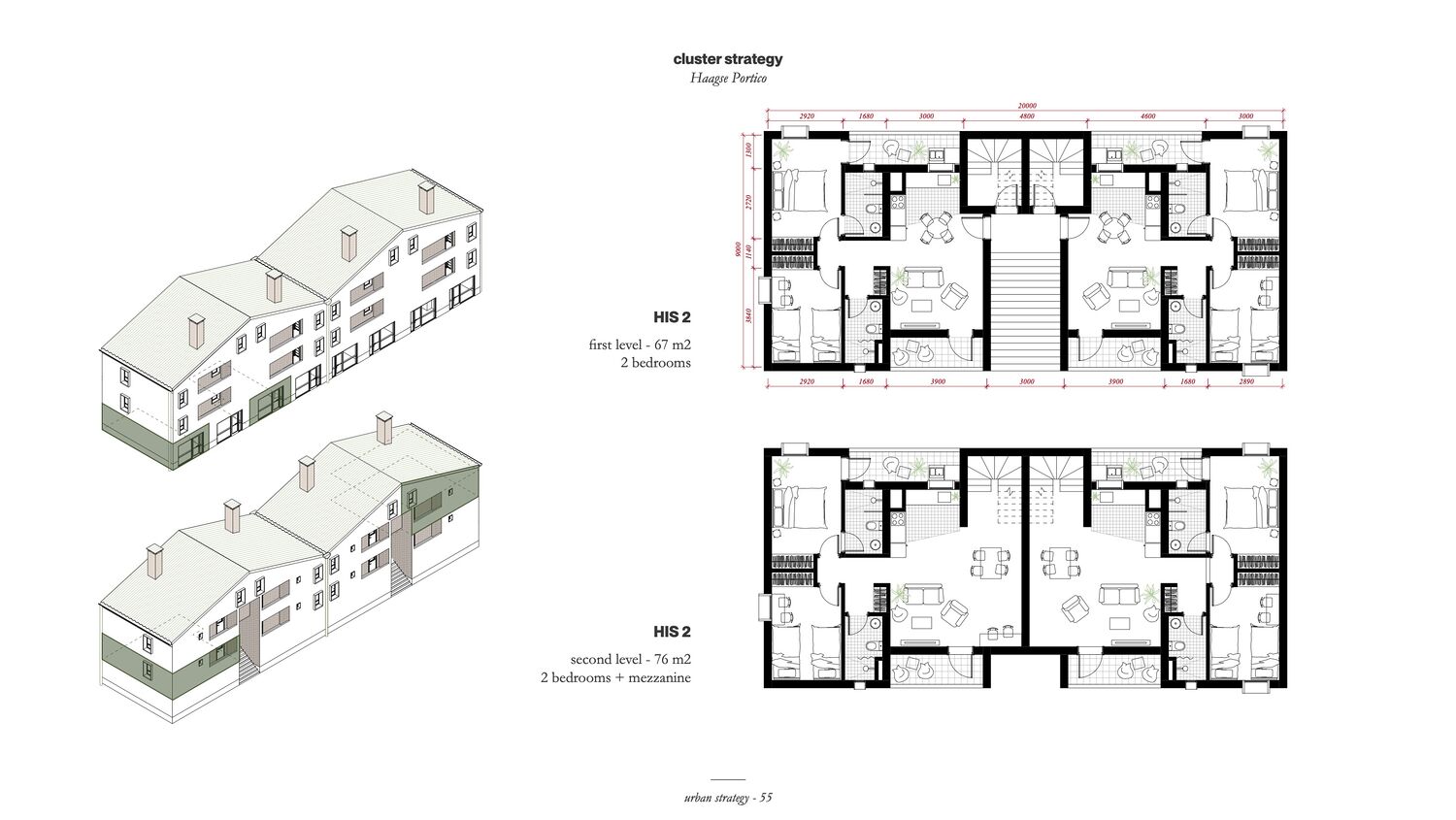
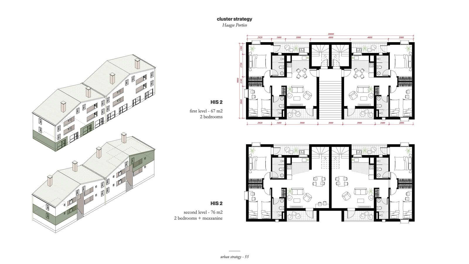
Cluster strategy
Drawing: © Geneviève Shymanski, MSc3/4: São Paulo: Repair and Consolidate (2022/2023)
Blacony access typology
Drawing: © Geneviève Shymanski, MSc3/4: São Paulo: Repair and Consolidate (2022/2023)
Climate section
Drawing: © Geneviève Shymanski, MSc3/4: São Paulo: Repair and Consolidate (2022/2023)