Where
  • Angola, Uíge
  • Bangladesh, Dhaka
  • Bangladesh, Sylhet
  • Bangladesh, Tanguar Haor
  • Brazil, São Paulo
  • Chile, Iquique
  • Egypt, Luxor
  • Ethiopia, Addis Ababa
  • Ghana, Accra
  • Ghana, Tema
  • Ghana, Tema Manhean
  • Guinee, Fria
  • India, Ahmedabad
  • India, Chandigarh
  • India, Delhi
  • India, Indore
  • India, Kerala
  • India, Mumbai
  • India, Nalasopara
  • India, Navi Mumbai
  • Iran, multiple
  • Iran, Shushtar
  • Iran, Tehran
  • Italy, Venice
  • Kenya, Nairobi
  • Nigeria, Lagos
  • Peru, Lima
  • Portugal, Evora
  • Rwanda, Kigali
  • Senegal, Dakar
  • Spain, Madrid
  • Tanzania, Dar es Salaam
  • The Netherlands, Delft
  • United Kingdom, London
  • United States, New York
  • United States, Willingboro
When
  • 2020-2029
  • 2010-2019
  • 2000-2009
  • 1990-1999
  • 1980-1989
  • 1970-1979
  • 1960-1969
  • 1950-1959
  • 1940-1949
  • 1930-1939
  • 1920-1929
  • 1910-1919
  • 1900-1909
What
  • high-rise
  • incremental
  • low-rise
  • low income housing
  • mid-rise
  • new town
  • participatory design
  • sites & services
  • slum rehab
Who
  • Marion Achach
  • Tanushree Aggarwal
  • Rafaela Ahsan
  • Jasper Ambagts
  • Trupti Amritwar Vaitla (MESN)
  • Purbi Architects
  • Deepanshu Arneja
  • Tom Avermaete
  • W,F,R. Ballard
  • Ron Barten
  • Michele Bassi
  • A. Bertoud
  • Romy Bijl
  • Lotte Bijwaard
  • Bombay Improvement Trust
  • Fabio Buondonno
  • Ludovica Cassina
  • Daniele Ceragno
  • Jia Fang Chang
  • Henry S. Churchill
  • Bari Cobbina
  • Gioele Colombo
  • Rocio Conesa Sánchez
  • Charles Correa
  • Freya Crijns
  • Ype Cuperus
  • Javier de Alvear Criado
  • Coco de Bok
  • Jose de la Torre
  • Junta Nacional de la Vivienda
  • Margot de Man
  • Jeffrey Deng
  • Kim de Raedt
  • H.A. Derbishire
  • Pepij Determann
  • Anand Dhokay
  • Kamran Diba
  • Jean Dimitrijevic
  • Olivia Dolan
  • Youri Doorn
  • Constantinus A. Doxiadis
  • Jane Drew
  • Jin-Ah Duijghuizen
  • Michel Écochard
  • Marja Elsinga
  • Carmen Espegel
  • Hassan Fathy
  • Federica Fogazzi
  • Arianna Fornasiero
  • Manon Fougerouse
  • Frederick G. Frost
  • Maxwell Fry
  • Lida Chrysi Ganotaki
  • Yasmine Garti
  • Mascha Gerrits
  • Mattia Graaf
  • Greater London Council (GLC)
  • Anna Grenestedt
  • Vanessa Grossman
  • Marcus Grosveld
  • Gruzen & Partners
  • Helen Elizabeth Gyger
  • Shirin Hadi
  • Marietta Haffner
  • Anna Halleran
  • Francisca Hamilton
  • Klaske Havik
  • Katrina Hemingway
  • Dirk van den Heuvel
  • Jeff Hill
  • Bas Hoevenaars
  • S. Holst
  • Maartje Holtslag
  • Housing Development Project Office
  • Genora Jankee
  • Henk Jonkers
  • Michel Kalt
  • Anthéa Karakoullis
  • Hyosik Kim
  • Stanisław Klajs
  • Stephany Knize
  • Bartosz Kobylakiewicz
  • Tessa Koenig Gimeno
  • Mara Kopp
  • Beatrijs Kostelijk
  • Annenies Kraaij
  • Aga Kus
  • Sue Vern Lai
  • Yiyi Lai
  • Isabel Lee
  • Monica Lelieveld
  • Jaime Lerner
  • Levitt & Sons
  • Lieke Lohmeijer
  • Femke Lokhorst
  • Fleur A. Luca
  • Qiaoyun Lu
  • Danai Makri
  • Isabella Månsson
  • Mira Meegens
  • Rahul Mehrotra
  • Andrea Migotto
  • Harald Mooij
  • Julie Moraca
  • Nelson Mota
  • Municipality of Addis Ababa
  • Dennis Musalim
  • Timothy Nelson Stins
  • NGO Red Barna-Ethiopia
  • Gabriel Ogbonna
  • Federico Ortiz Velásquez
  • Mees Paanakker
  • Sameep Padora
  • Santiago Palacio Villa
  • Antonio Paoletti
  • Caspar Pasveer
  • Casper Pasveer
  • V. Phatak
  • Andreea Pirvan
  • PK Das & Associates
  • Daniel Pouradier-Duteil
  • Michelle Provoost
  • Pierijn van der Putt
  • Wido Quist
  • Frank Reitsma
  • Raj Rewal
  • Robert Rigg
  • Robin Ringel
  • Charlotte Robinson
  • Roberto Rocco
  • Laura Sacchetti
  • Francisco Javier Sáenz de Oiza
  • Ramona Scheffer
  • Frank Schnater
  • Sanette Schreurs
  • Tim Schuurman
  • Dr. ir. Mohamad Ali Sedighi
  • Sara Seifert
  • Self-built
  • Zhuo-ming Shia
  • Geneviève Shymanski
  • Manuel Sierra Nava
  • Carlos Silvestre Baquero
  • Mo Smit
  • Christina Soediono
  • Joelle Steendam
  • Marina Tabassum
  • Brook Teklehaimanot Haileselassie
  • Kaspar ter Glane
  • Anteneh Tesfaye Tola
  • Carla Tietzsch
  • Chiara Tobia
  • Fabio Tossutti
  • Paolo Turconi
  • Burnett Turner
  • Unknown
  • Frederique van Andel
  • Ties van Benten
  • Hubert van der Meel
  • Anne van der Meulen
  • Anja van der Watt
  • Marissa van der Weg
  • Jan van de Voort
  • Cassandre van Duinen
  • Dick van Gameren
  • Annemijn van Gurp
  • Mark van Kats
  • Bas van Lenteren
  • Rens van Poppel
  • Rens van Vliet
  • Rohan Varma
  • Stephan Verkuijlen
  • Pierre Vignal
  • Gavin Wallace
  • W.E. Wallis
  • Michel Weill
  • Julian Wijnen
  • Afua Wilcox
  • Ella Wildenberg
  • V. Wilkins
  • Alexander Witkamp
  • Krystian Woźniak
  • Hatice Yilmaz
  • Haobo Zhang
  • Gonzalo Zylberman
E Education
  • Honours Programme
  • Master thesis
  • MSc level
  • student analysis
  • student design
R Research
  • book (chapter)
  • conference paper
  • dissertation
  • exhibition
  • interview
  • journal article
  • lecture
P Practice
  • built
< BACK

The Bridge

Tutor
Location
Date
Keywords
high density, clustering, standardization
Images
Axonometric view
Drawing: © Qiaoyun Lu & Haobo Zhang, MSc2 Global Housing Studio Tema
Files
Axonometric view
Drawing: © Qiaoyun Lu & Haobo Zhang, MSc2 Global Housing Studio Tema
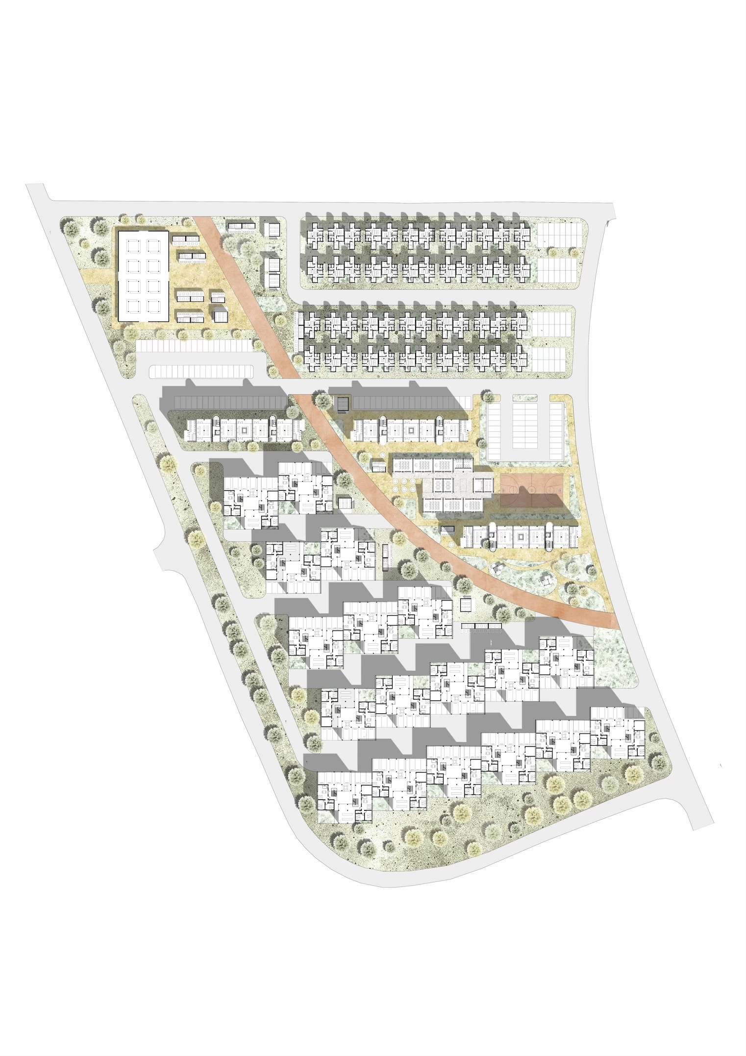
Master plan
Drawing: © Qiaoyun Lu & Haobo Zhang, MSc2 Global Housing Studio Tema
Neighbourhood plan view
Drawing: © Qiaoyun Lu & Haobo Zhang, MSc2 Global Housing Studio Tema
Multistorey building for high income groups
Drawing: © Qiaoyun Lu & Haobo Zhang, MSc2 Global Housing Studio Tema
Ground floor plan: high rise
Drawing: © Qiaoyun Lu & Haobo Zhang, MSc2 Global Housing Studio Tema
High rise building
Image: © Qiaoyun Lu & Haobo Zhang, MSc2 Global Housing Studio Tema
Floor plan: courtyard house for middle income groups
Drawing: © Qiaoyun Lu & Haobo Zhang, MSc2 Global Housing Studio Tema
Cross Section: courtyard house
Drawing: © Qiaoyun Lu & Haobo Zhang, MSc2 Global Housing Studio Tema
Courtyard houses
Image: © Qiaoyun Lu & Haobo Zhang, MSc2 Global Housing Studio Tema
Detail Section: courtyard houses
Drawing: © Qiaoyun Lu & Haobo Zhang, MSc2 Global Housing Studio Tema
Container Houses for Low income groups
Drawing: © Qiaoyun Lu & Haobo Zhang, MSc2 Global Housing Studio Tema
Ground floor plan: container house
Drawing: © Qiaoyun Lu & Haobo Zhang, MSc2 Global Housing Studio Tema
Container Houses
Image: © Qiaoyun Lu & Haobo Zhang, MSc2 Global Housing Studio Tema