Where
  • Angola, Uíge
  • Bangladesh, Dhaka
  • Bangladesh, Sylhet
  • Bangladesh, Tanguar Haor
  • Brazil, São Paulo
  • Chile, Iquique
  • Egypt, Luxor
  • Ethiopia, Addis Ababa
  • Ghana, Accra
  • Ghana, Tema
  • Ghana, Tema Manhean
  • Guinee, Fria
  • India, Ahmedabad
  • India, Chandigarh
  • India, Delhi
  • India, Indore
  • India, Kerala
  • India, Mumbai
  • India, Nalasopara
  • India, Navi Mumbai
  • Iran, multiple
  • Iran, Shushtar
  • Iran, Tehran
  • Italy, Venice
  • Kenya, Nairobi
  • Nigeria, Lagos
  • Peru, Lima
  • Portugal, Evora
  • Rwanda, Kigali
  • Senegal, Dakar
  • Spain, Madrid
  • Tanzania, Dar es Salaam
  • The Netherlands, Delft
  • United Kingdom, London
  • United States, New York
  • United States, Willingboro
When
  • 2020-2029
  • 2010-2019
  • 2000-2009
  • 1990-1999
  • 1980-1989
  • 1970-1979
  • 1960-1969
  • 1950-1959
  • 1940-1949
  • 1930-1939
  • 1920-1929
  • 1910-1919
  • 1900-1909
What
  • high-rise
  • incremental
  • low-rise
  • low income housing
  • mid-rise
  • new town
  • participatory design
  • sites & services
  • slum rehab
Who
  • Marion Achach
  • Tanushree Aggarwal
  • Rafaela Ahsan
  • Jasper Ambagts
  • Trupti Amritwar Vaitla (MESN)
  • Purbi Architects
  • Deepanshu Arneja
  • Tom Avermaete
  • W,F,R. Ballard
  • Ron Barten
  • Michele Bassi
  • A. Bertoud
  • Romy Bijl
  • Lotte Bijwaard
  • Bombay Improvement Trust
  • Fabio Buondonno
  • Ludovica Cassina
  • Daniele Ceragno
  • Jia Fang Chang
  • Henry S. Churchill
  • Bari Cobbina
  • Gioele Colombo
  • Rocio Conesa Sánchez
  • Charles Correa
  • Freya Crijns
  • Ype Cuperus
  • Javier de Alvear Criado
  • Coco de Bok
  • Jose de la Torre
  • Junta Nacional de la Vivienda
  • Margot de Man
  • Jeffrey Deng
  • Kim de Raedt
  • H.A. Derbishire
  • Pepij Determann
  • Anand Dhokay
  • Kamran Diba
  • Jean Dimitrijevic
  • Olivia Dolan
  • Youri Doorn
  • Constantinus A. Doxiadis
  • Jane Drew
  • Jin-Ah Duijghuizen
  • Michel Écochard
  • Marja Elsinga
  • Carmen Espegel
  • Hassan Fathy
  • Federica Fogazzi
  • Arianna Fornasiero
  • Manon Fougerouse
  • Frederick G. Frost
  • Maxwell Fry
  • Lida Chrysi Ganotaki
  • Yasmine Garti
  • Mascha Gerrits
  • Mattia Graaf
  • Greater London Council (GLC)
  • Anna Grenestedt
  • Vanessa Grossman
  • Marcus Grosveld
  • Gruzen & Partners
  • Helen Elizabeth Gyger
  • Shirin Hadi
  • Marietta Haffner
  • Anna Halleran
  • Francisca Hamilton
  • Klaske Havik
  • Katrina Hemingway
  • Dirk van den Heuvel
  • Jeff Hill
  • Bas Hoevenaars
  • S. Holst
  • Maartje Holtslag
  • Housing Development Project Office
  • Genora Jankee
  • Henk Jonkers
  • Michel Kalt
  • Anthéa Karakoullis
  • Hyosik Kim
  • Stanisław Klajs
  • Stephany Knize
  • Bartosz Kobylakiewicz
  • Tessa Koenig Gimeno
  • Mara Kopp
  • Beatrijs Kostelijk
  • Annenies Kraaij
  • Aga Kus
  • Sue Vern Lai
  • Yiyi Lai
  • Isabel Lee
  • Monica Lelieveld
  • Jaime Lerner
  • Levitt & Sons
  • Lieke Lohmeijer
  • Femke Lokhorst
  • Fleur A. Luca
  • Qiaoyun Lu
  • Danai Makri
  • Isabella Månsson
  • Mira Meegens
  • Rahul Mehrotra
  • Andrea Migotto
  • Harald Mooij
  • Julie Moraca
  • Nelson Mota
  • Municipality of Addis Ababa
  • Dennis Musalim
  • Timothy Nelson Stins
  • NGO Red Barna-Ethiopia
  • Gabriel Ogbonna
  • Federico Ortiz Velásquez
  • Mees Paanakker
  • Sameep Padora
  • Santiago Palacio Villa
  • Antonio Paoletti
  • Caspar Pasveer
  • Casper Pasveer
  • V. Phatak
  • Andreea Pirvan
  • PK Das & Associates
  • Daniel Pouradier-Duteil
  • Michelle Provoost
  • Pierijn van der Putt
  • Wido Quist
  • Frank Reitsma
  • Raj Rewal
  • Robert Rigg
  • Robin Ringel
  • Charlotte Robinson
  • Roberto Rocco
  • Laura Sacchetti
  • Francisco Javier Sáenz de Oiza
  • Ramona Scheffer
  • Frank Schnater
  • Sanette Schreurs
  • Tim Schuurman
  • Dr. ir. Mohamad Ali Sedighi
  • Sara Seifert
  • Self-built
  • Zhuo-ming Shia
  • Geneviève Shymanski
  • Manuel Sierra Nava
  • Carlos Silvestre Baquero
  • Mo Smit
  • Christina Soediono
  • Joelle Steendam
  • Marina Tabassum
  • Brook Teklehaimanot Haileselassie
  • Kaspar ter Glane
  • Anteneh Tesfaye Tola
  • Carla Tietzsch
  • Chiara Tobia
  • Fabio Tossutti
  • Paolo Turconi
  • Burnett Turner
  • Unknown
  • Frederique van Andel
  • Ties van Benten
  • Hubert van der Meel
  • Anne van der Meulen
  • Anja van der Watt
  • Marissa van der Weg
  • Jan van de Voort
  • Cassandre van Duinen
  • Dick van Gameren
  • Annemijn van Gurp
  • Mark van Kats
  • Bas van Lenteren
  • Rens van Poppel
  • Rens van Vliet
  • Rohan Varma
  • Stephan Verkuijlen
  • Pierre Vignal
  • Gavin Wallace
  • W.E. Wallis
  • Michel Weill
  • Julian Wijnen
  • Afua Wilcox
  • Ella Wildenberg
  • V. Wilkins
  • Alexander Witkamp
  • Krystian Woźniak
  • Hatice Yilmaz
  • Haobo Zhang
  • Gonzalo Zylberman
E Education
  • Honours Programme
  • Master thesis
  • MSc level
  • student analysis
  • student design
R Research
  • book (chapter)
  • conference paper
  • dissertation
  • exhibition
  • interview
  • journal article
  • lecture
P Practice
  • built
< BACK

An Architecture of Enablement

A Participatory Housing project for Addis Ababa, Ethiopia

Student
Date
Keywords
incremental housing, mass housing, Addis Ababa
Images
Drawing: © Zhuo-ming Shia, MSc3/4 Global Housing Graduation Studio 'Addis Ababa Living Lab'
Text

An Architecture of Enablement’ creates a model for co-existence between top-down and bottom-up decision-making in the Global South. It suggests that current methods of housing production can be adopted in initial phases of construction, while participatory design, fundamentally rooted in informal practices of Addis’ dwellers, can take place at a later stage on a smaller scale. This ideological shift from ‘housing product’ to ‘housing process’ aims to create a win-win situation, meeting immediate housing demand and sowing the seeds for a cohesive and loved home for communities.

Files
Drawing: © Zhuo-ming Shia, MSc3/4 Global Housing Graduation Studio 'Addis Ababa Living Lab'
Isometric view showing the ensemble that makes up the cluster
Drawing: © Zhuo-ming Shia, MSc3/4 Global Housing Graduation Studio 'Addis Ababa Living Lab'
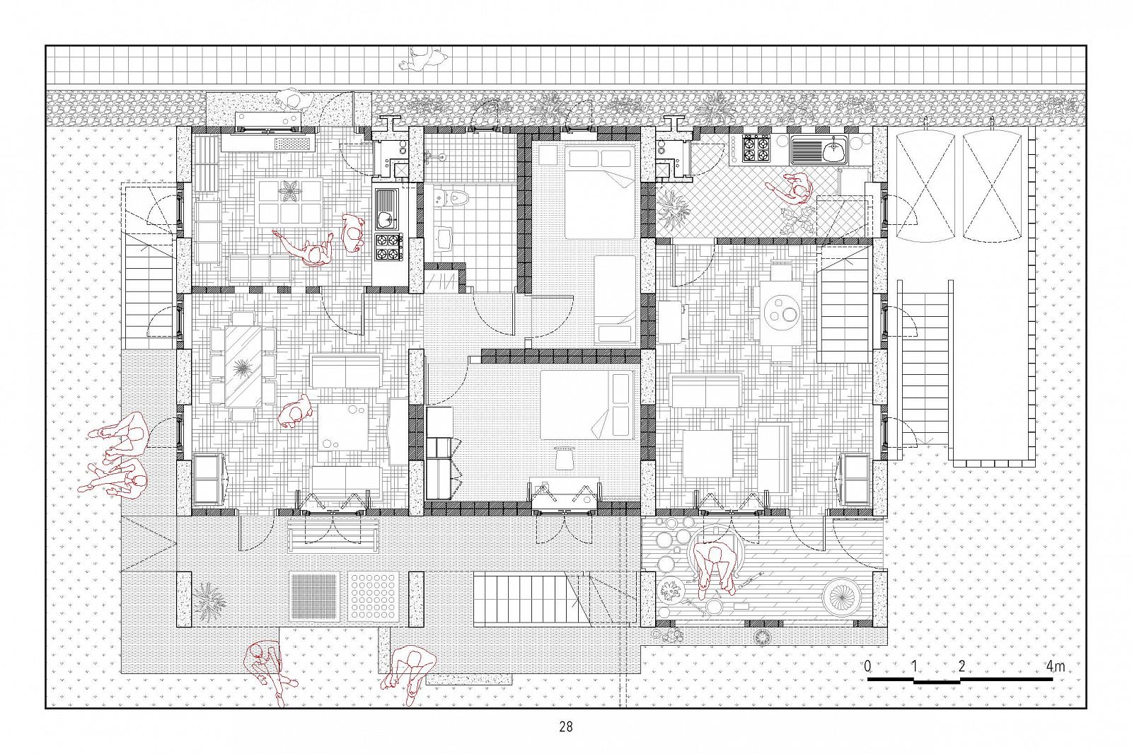
Supercluster: Realm of the Neighbourhood
Drawing: © Zhuo-ming Shia, MSc3/4 Global Housing Graduation Studio 'Addis Ababa Living Lab'
Plan showing introverted outdoor spaces
Drawing: © Zhuo-ming Shia, MSc3/4 Global Housing Graduation Studio 'Addis Ababa Living Lab'
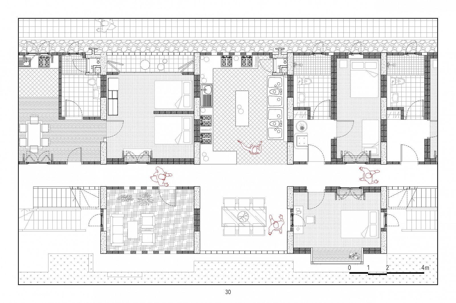
Building Typologies: Pavilion
Drawing: © Zhuo-ming Shia, MSc3/4 Global Housing Graduation Studio 'Addis Ababa Living Lab'
Plan of Pavilion Typology
Drawing: © Zhuo-ming Shia, MSc3/4 Global Housing Graduation Studio 'Addis Ababa Living Lab'
Building Typologies: Row House
Drawing: © Zhuo-ming Shia, MSc3/4 Global Housing Graduation Studio 'Addis Ababa Living Lab'
Plan of Row House Typology
Drawing: © Zhuo-ming Shia, MSc3/4 Global Housing Graduation Studio 'Addis Ababa Living Lab'
Building Typologies: Courtyard
Drawing: © Zhuo-ming Shia, MSc3/4 Global Housing Graduation Studio 'Addis Ababa Living Lab'
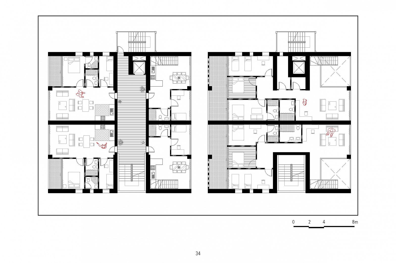
Building Typologies: Tower
Drawing: © Zhuo-ming Shia, MSc3/4 Global Housing Graduation Studio 'Addis Ababa Living Lab'
Plan of Tower Typology
Drawing: © Zhuo-ming Shia, MSc3/4 Global Housing Graduation Studio 'Addis Ababa Living Lab'
Drawing: © Zhuo-ming Shia, MSc3/4 Global Housing Graduation Studio 'Addis Ababa Living Lab'
Drawing: © Zhuo-ming Shia, MSc3/4 Global Housing Graduation Studio 'Addis Ababa Living Lab'
Drawing: © Zhuo-ming Shia, MSc3/4 Global Housing Graduation Studio 'Addis Ababa Living Lab'
Drawing: © Zhuo-ming Shia, MSc3/4 Global Housing Graduation Studio 'Addis Ababa Living Lab'
Drawing: © Zhuo-ming Shia, MSc3/4 Global Housing Graduation Studio 'Addis Ababa Living Lab'
Drawing: © Zhuo-ming Shia, MSc3/4 Global Housing Graduation Studio 'Addis Ababa Living Lab'
Drawing: © Zhuo-ming Shia, MSc3/4 Global Housing Graduation Studio 'Addis Ababa Living Lab'
Drawing: © Zhuo-ming Shia, MSc3/4 Global Housing Graduation Studio 'Addis Ababa Living Lab'
Drawing: © Zhuo-ming Shia, MSc3/4 Global Housing Graduation Studio 'Addis Ababa Living Lab'
Drawing: © Zhuo-ming Shia, MSc3/4 Global Housing Graduation Studio 'Addis Ababa Living Lab'
Drawing: © Zhuo-ming Shia, MSc3/4 Global Housing Graduation Studio 'Addis Ababa Living Lab'
Drawing: © Zhuo-ming Shia, MSc3/4 Global Housing Graduation Studio 'Addis Ababa Living Lab'
Drawing: © Zhuo-ming Shia, MSc3/4 Global Housing Graduation Studio 'Addis Ababa Living Lab'
Drawing: © Zhuo-ming Shia, MSc3/4 Global Housing Graduation Studio 'Addis Ababa Living Lab'
Drawing: © Zhuo-ming Shia, MSc3/4 Global Housing Graduation Studio 'Addis Ababa Living Lab'