Where
  • Angola, Uíge
  • Bangladesh, Dhaka
  • Bangladesh, Sylhet
  • Bangladesh, Tanguar Haor
  • Brazil, São Paulo
  • Chile, Iquique
  • Egypt, Luxor
  • Ethiopia, Addis Ababa
  • Ghana, Accra
  • Ghana, Tema
  • Ghana, Tema Manhean
  • Guinee, Fria
  • India, Ahmedabad
  • India, Chandigarh
  • India, Delhi
  • India, Indore
  • India, Kerala
  • India, Mumbai
  • India, Nalasopara
  • India, Navi Mumbai
  • Iran, multiple
  • Iran, Shushtar
  • Iran, Tehran
  • Italy, Venice
  • Kenya, Nairobi
  • Nigeria, Lagos
  • Peru, Lima
  • Portugal, Evora
  • Rwanda, Kigali
  • Senegal, Dakar
  • Spain, Madrid
  • Tanzania, Dar es Salaam
  • The Netherlands, Delft
  • United Kingdom, London
  • United States, New York
  • United States, Willingboro
When
  • 2020-2029
  • 2010-2019
  • 2000-2009
  • 1990-1999
  • 1980-1989
  • 1970-1979
  • 1960-1969
  • 1950-1959
  • 1940-1949
  • 1930-1939
  • 1920-1929
  • 1910-1919
  • 1900-1909
What
  • high-rise
  • incremental
  • low-rise
  • low income housing
  • mid-rise
  • new town
  • participatory design
  • sites & services
  • slum rehab
Who
  • Marion Achach
  • Tanushree Aggarwal
  • Rafaela Ahsan
  • Jasper Ambagts
  • Trupti Amritwar Vaitla (MESN)
  • Purbi Architects
  • Deepanshu Arneja
  • Tom Avermaete
  • W,F,R. Ballard
  • Ron Barten
  • Michele Bassi
  • A. Bertoud
  • Romy Bijl
  • Lotte Bijwaard
  • Bombay Improvement Trust
  • Fabio Buondonno
  • Ludovica Cassina
  • Daniele Ceragno
  • Jia Fang Chang
  • Henry S. Churchill
  • Bari Cobbina
  • Gioele Colombo
  • Rocio Conesa Sánchez
  • Charles Correa
  • Freya Crijns
  • Ype Cuperus
  • Javier de Alvear Criado
  • Coco de Bok
  • Jose de la Torre
  • Junta Nacional de la Vivienda
  • Margot de Man
  • Jeffrey Deng
  • Kim de Raedt
  • H.A. Derbishire
  • Pepij Determann
  • Anand Dhokay
  • Kamran Diba
  • Jean Dimitrijevic
  • Olivia Dolan
  • Youri Doorn
  • Constantinus A. Doxiadis
  • Jane Drew
  • Jin-Ah Duijghuizen
  • Michel Écochard
  • Marja Elsinga
  • Carmen Espegel
  • Hassan Fathy
  • Federica Fogazzi
  • Arianna Fornasiero
  • Manon Fougerouse
  • Frederick G. Frost
  • Maxwell Fry
  • Lida Chrysi Ganotaki
  • Yasmine Garti
  • Mascha Gerrits
  • Mattia Graaf
  • Greater London Council (GLC)
  • Anna Grenestedt
  • Vanessa Grossman
  • Marcus Grosveld
  • Gruzen & Partners
  • Helen Elizabeth Gyger
  • Shirin Hadi
  • Marietta Haffner
  • Anna Halleran
  • Francisca Hamilton
  • Klaske Havik
  • Katrina Hemingway
  • Dirk van den Heuvel
  • Jeff Hill
  • Bas Hoevenaars
  • S. Holst
  • Maartje Holtslag
  • Housing Development Project Office
  • Genora Jankee
  • Henk Jonkers
  • Michel Kalt
  • Anthéa Karakoullis
  • Hyosik Kim
  • Stanisław Klajs
  • Stephany Knize
  • Bartosz Kobylakiewicz
  • Tessa Koenig Gimeno
  • Mara Kopp
  • Beatrijs Kostelijk
  • Annenies Kraaij
  • Aga Kus
  • Sue Vern Lai
  • Yiyi Lai
  • Isabel Lee
  • Monica Lelieveld
  • Jaime Lerner
  • Levitt & Sons
  • Lieke Lohmeijer
  • Femke Lokhorst
  • Fleur A. Luca
  • Qiaoyun Lu
  • Danai Makri
  • Isabella Månsson
  • Mira Meegens
  • Rahul Mehrotra
  • Andrea Migotto
  • Harald Mooij
  • Julie Moraca
  • Nelson Mota
  • Municipality of Addis Ababa
  • Dennis Musalim
  • Timothy Nelson Stins
  • NGO Red Barna-Ethiopia
  • Gabriel Ogbonna
  • Federico Ortiz Velásquez
  • Mees Paanakker
  • Sameep Padora
  • Santiago Palacio Villa
  • Antonio Paoletti
  • Caspar Pasveer
  • Casper Pasveer
  • V. Phatak
  • Andreea Pirvan
  • PK Das & Associates
  • Daniel Pouradier-Duteil
  • Michelle Provoost
  • Pierijn van der Putt
  • Wido Quist
  • Frank Reitsma
  • Raj Rewal
  • Robert Rigg
  • Robin Ringel
  • Charlotte Robinson
  • Roberto Rocco
  • Laura Sacchetti
  • Francisco Javier Sáenz de Oiza
  • Ramona Scheffer
  • Frank Schnater
  • Sanette Schreurs
  • Tim Schuurman
  • Dr. ir. Mohamad Ali Sedighi
  • Sara Seifert
  • Self-built
  • Zhuo-ming Shia
  • Geneviève Shymanski
  • Manuel Sierra Nava
  • Carlos Silvestre Baquero
  • Mo Smit
  • Christina Soediono
  • Joelle Steendam
  • Marina Tabassum
  • Brook Teklehaimanot Haileselassie
  • Kaspar ter Glane
  • Anteneh Tesfaye Tola
  • Carla Tietzsch
  • Chiara Tobia
  • Fabio Tossutti
  • Paolo Turconi
  • Burnett Turner
  • Unknown
  • Frederique van Andel
  • Ties van Benten
  • Hubert van der Meel
  • Anne van der Meulen
  • Anja van der Watt
  • Marissa van der Weg
  • Jan van de Voort
  • Cassandre van Duinen
  • Dick van Gameren
  • Annemijn van Gurp
  • Mark van Kats
  • Bas van Lenteren
  • Rens van Poppel
  • Rens van Vliet
  • Rohan Varma
  • Stephan Verkuijlen
  • Pierre Vignal
  • Gavin Wallace
  • W.E. Wallis
  • Michel Weill
  • Julian Wijnen
  • Afua Wilcox
  • Ella Wildenberg
  • V. Wilkins
  • Alexander Witkamp
  • Krystian Woźniak
  • Hatice Yilmaz
  • Haobo Zhang
  • Gonzalo Zylberman
E Education
  • Honours Programme
  • Master thesis
  • MSc level
  • student analysis
  • student design
R Research
  • book (chapter)
  • conference paper
  • dissertation
  • exhibition
  • interview
  • journal article
  • lecture
P Practice
  • built
< BACK

Building New Cycles

Images
Collage
Drawing: © Isabella Månsson, MSc3/4: Mixing Navi Mumbai (2021/2022)
Text

India has a cultural acceptance of gender-based violence which leads to unsafe situations for women. The cycle of violence is an ongoing phenomenon that has not given much room for improvement or prevention. But when a woman does get a chance to escape, the possibilities of a better life are minimal. Navi Mumbai’s development has a tendency for social inequality, spatial injustice, and environmental degradation. The project provides solutions to the negative consequences of the social and historical background of the issue. Building New Cycles will be able to be used as a toolbox to repeat at multiple places in the city. The main goal is to change behavior through neighborhood designs as a social catalyst. A neighborhood development has been designed to provide safety and reintegration to mistreated women. Developing an understanding of a well-integrated urban neighborhood from the viewpoint of diverse income groups. It offers the possibility to navigate between shelter and contact, group activities, and exploration in its intricate urban environments.

Files
Collage
Drawing: © Isabella Månsson, MSc3/4: Mixing Navi Mumbai (2021/2022)
Concept
Drawing: © Isabella Månsson, MSc3/4: Mixing Navi Mumbai (2021/2022)
Urban section
Drawing: © Isabella Månsson, MSc3/4: Mixing Navi Mumbai (2021/2022)
Master plan
Drawing: © Isabella Månsson, MSc3/4: Mixing Navi Mumbai (2021/2022)
Perspective
Drawing: © Isabella Månsson, MSc3/4: Mixing Navi Mumbai (2021/2022)
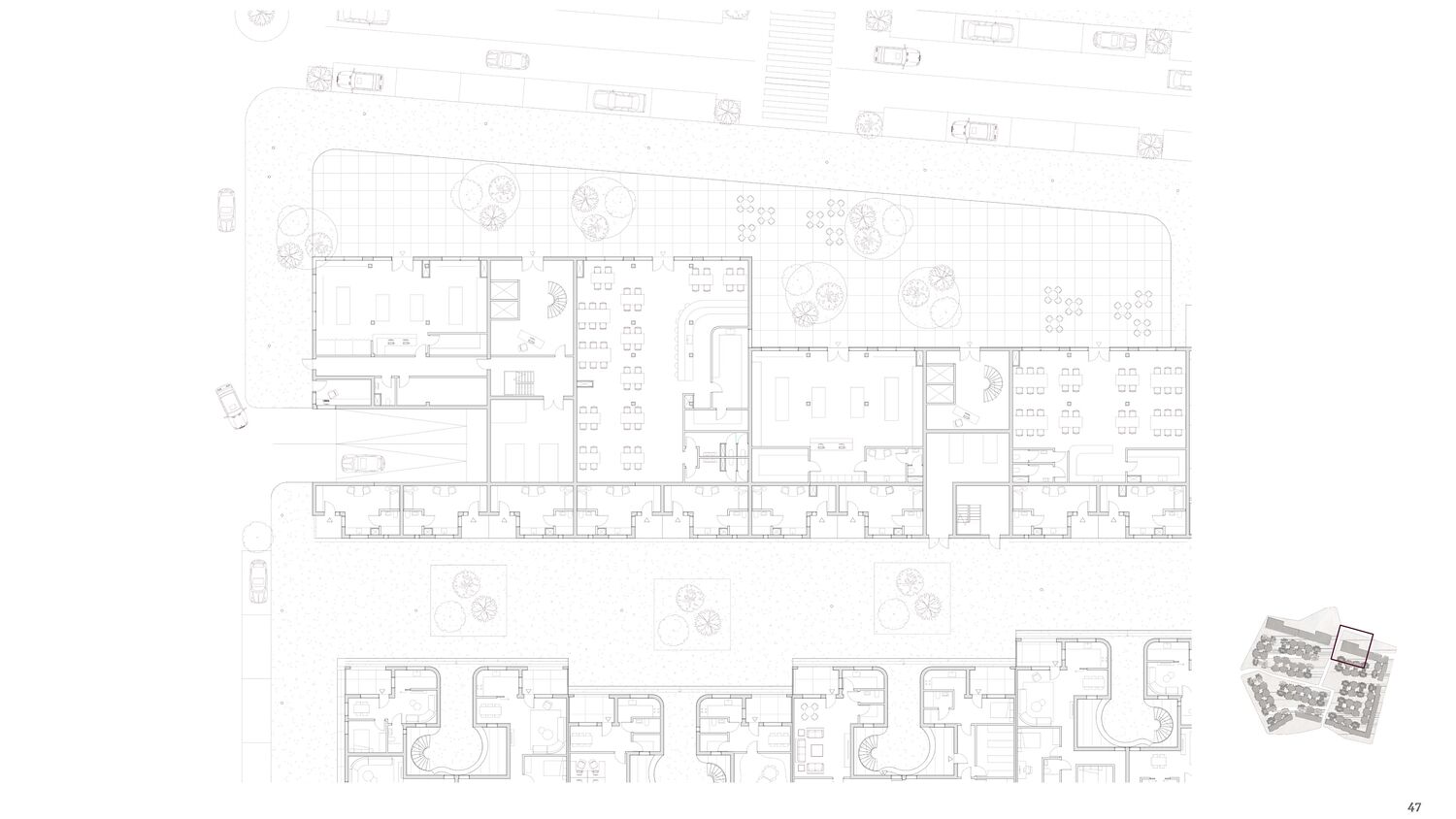
Typical floor plan
Drawing: © Isabella Månsson, MSc3/4: Mixing Navi Mumbai (2021/2022)
Typical floor plans
Drawing: © Isabella Månsson, MSc3/4: Mixing Navi Mumbai (2021/2022)
Perspective
Drawing: © Isabella Månsson, MSc3/4: Mixing Navi Mumbai (2021/2022)
Climate section
Drawing: © Isabella Månsson, MSc3/4: Mixing Navi Mumbai (2021/2022)
Floor plan
Drawing: © Isabella Månsson, MSc3/4: Mixing Navi Mumbai (2021/2022)
Perspective
Drawing: © Isabella Månsson, MSc3/4: Mixing Navi Mumbai (2021/2022)
Facade fragment
Drawing: © Isabella Månsson, MSc3/4: Mixing Navi Mumbai (2021/2022)