Where
  • Angola, Uíge
  • Bangladesh, Dhaka
  • Bangladesh, Sylhet
  • Bangladesh, Tanguar Haor
  • Brazil, São Paulo
  • Chile, Iquique
  • Egypt, Luxor
  • Ethiopia, Addis Ababa
  • Ghana, Accra
  • Ghana, Tema
  • Ghana, Tema Manhean
  • Guinee, Fria
  • India, Ahmedabad
  • India, Chandigarh
  • India, Delhi
  • India, Indore
  • India, Kerala
  • India, Mumbai
  • India, Nalasopara
  • India, Navi Mumbai
  • Iran, multiple
  • Iran, Shushtar
  • Iran, Tehran
  • Italy, Venice
  • Kenya, Nairobi
  • Nigeria, Lagos
  • Peru, Lima
  • Portugal, Evora
  • Rwanda, Kigali
  • Senegal, Dakar
  • Spain, Madrid
  • Tanzania, Dar es Salaam
  • The Netherlands, Delft
  • United Kingdom, London
  • United States, New York
  • United States, Willingboro
When
  • 2020-2029
  • 2010-2019
  • 2000-2009
  • 1990-1999
  • 1980-1989
  • 1970-1979
  • 1960-1969
  • 1950-1959
  • 1940-1949
  • 1930-1939
  • 1920-1929
  • 1910-1919
  • 1900-1909
What
  • high-rise
  • incremental
  • low-rise
  • low income housing
  • mid-rise
  • new town
  • participatory design
  • sites & services
  • slum rehab
Who
  • Marion Achach
  • Tanushree Aggarwal
  • Rafaela Ahsan
  • Jasper Ambagts
  • Trupti Amritwar Vaitla (MESN)
  • Purbi Architects
  • Deepanshu Arneja
  • Tom Avermaete
  • W,F,R. Ballard
  • Ron Barten
  • Michele Bassi
  • A. Bertoud
  • Romy Bijl
  • Lotte Bijwaard
  • Bombay Improvement Trust
  • Fabio Buondonno
  • Ludovica Cassina
  • Daniele Ceragno
  • Jia Fang Chang
  • Henry S. Churchill
  • Bari Cobbina
  • Gioele Colombo
  • Rocio Conesa Sánchez
  • Charles Correa
  • Freya Crijns
  • Ype Cuperus
  • Javier de Alvear Criado
  • Coco de Bok
  • Jose de la Torre
  • Junta Nacional de la Vivienda
  • Margot de Man
  • Jeffrey Deng
  • Kim de Raedt
  • H.A. Derbishire
  • Pepij Determann
  • Anand Dhokay
  • Kamran Diba
  • Jean Dimitrijevic
  • Olivia Dolan
  • Youri Doorn
  • Constantinus A. Doxiadis
  • Jane Drew
  • Jin-Ah Duijghuizen
  • Michel Écochard
  • Marja Elsinga
  • Carmen Espegel
  • Hassan Fathy
  • Federica Fogazzi
  • Arianna Fornasiero
  • Manon Fougerouse
  • Frederick G. Frost
  • Maxwell Fry
  • Lida Chrysi Ganotaki
  • Yasmine Garti
  • Mascha Gerrits
  • Mattia Graaf
  • Greater London Council (GLC)
  • Anna Grenestedt
  • Vanessa Grossman
  • Marcus Grosveld
  • Gruzen & Partners
  • Helen Elizabeth Gyger
  • Shirin Hadi
  • Marietta Haffner
  • Anna Halleran
  • Francisca Hamilton
  • Klaske Havik
  • Katrina Hemingway
  • Dirk van den Heuvel
  • Jeff Hill
  • Bas Hoevenaars
  • S. Holst
  • Maartje Holtslag
  • Housing Development Project Office
  • Genora Jankee
  • Henk Jonkers
  • Michel Kalt
  • Anthéa Karakoullis
  • Hyosik Kim
  • Stanisław Klajs
  • Stephany Knize
  • Bartosz Kobylakiewicz
  • Tessa Koenig Gimeno
  • Mara Kopp
  • Beatrijs Kostelijk
  • Annenies Kraaij
  • Aga Kus
  • Sue Vern Lai
  • Yiyi Lai
  • Isabel Lee
  • Monica Lelieveld
  • Jaime Lerner
  • Levitt & Sons
  • Lieke Lohmeijer
  • Femke Lokhorst
  • Fleur A. Luca
  • Qiaoyun Lu
  • Danai Makri
  • Isabella Månsson
  • Mira Meegens
  • Rahul Mehrotra
  • Andrea Migotto
  • Harald Mooij
  • Julie Moraca
  • Nelson Mota
  • Municipality of Addis Ababa
  • Dennis Musalim
  • Timothy Nelson Stins
  • NGO Red Barna-Ethiopia
  • Gabriel Ogbonna
  • Federico Ortiz Velásquez
  • Mees Paanakker
  • Sameep Padora
  • Santiago Palacio Villa
  • Antonio Paoletti
  • Caspar Pasveer
  • Casper Pasveer
  • V. Phatak
  • Andreea Pirvan
  • PK Das & Associates
  • Daniel Pouradier-Duteil
  • Michelle Provoost
  • Pierijn van der Putt
  • Wido Quist
  • Frank Reitsma
  • Raj Rewal
  • Robert Rigg
  • Robin Ringel
  • Charlotte Robinson
  • Roberto Rocco
  • Laura Sacchetti
  • Francisco Javier Sáenz de Oiza
  • Ramona Scheffer
  • Frank Schnater
  • Sanette Schreurs
  • Tim Schuurman
  • Dr. ir. Mohamad Ali Sedighi
  • Sara Seifert
  • Self-built
  • Zhuo-ming Shia
  • Geneviève Shymanski
  • Manuel Sierra Nava
  • Carlos Silvestre Baquero
  • Mo Smit
  • Christina Soediono
  • Joelle Steendam
  • Marina Tabassum
  • Brook Teklehaimanot Haileselassie
  • Kaspar ter Glane
  • Anteneh Tesfaye Tola
  • Carla Tietzsch
  • Chiara Tobia
  • Fabio Tossutti
  • Paolo Turconi
  • Burnett Turner
  • Unknown
  • Frederique van Andel
  • Ties van Benten
  • Hubert van der Meel
  • Anne van der Meulen
  • Anja van der Watt
  • Marissa van der Weg
  • Jan van de Voort
  • Cassandre van Duinen
  • Dick van Gameren
  • Annemijn van Gurp
  • Mark van Kats
  • Bas van Lenteren
  • Rens van Poppel
  • Rens van Vliet
  • Rohan Varma
  • Stephan Verkuijlen
  • Pierre Vignal
  • Gavin Wallace
  • W.E. Wallis
  • Michel Weill
  • Julian Wijnen
  • Afua Wilcox
  • Ella Wildenberg
  • V. Wilkins
  • Alexander Witkamp
  • Krystian Woźniak
  • Hatice Yilmaz
  • Haobo Zhang
  • Gonzalo Zylberman
E Education
  • Honours Programme
  • Master thesis
  • MSc level
  • student analysis
  • student design
R Research
  • book (chapter)
  • conference paper
  • dissertation
  • exhibition
  • interview
  • journal article
  • lecture
P Practice
  • built
< BACK

Negotiating the Peri-Urban

Exploring Housing Serves as a Mediator between Local Inhabitants and Migrant Quarry Workers in Navi Mumbai

Student
Date
Keywords
rapid urbanisation
Images
Cluster 1: perspective
Drawing: © Yiyi Lai, MSc3/4: Mixing Navi Mumbai (2021/2022)
Text

India's rapid urbanization results in a horizontal urban expansion to the periphery, shaping them into a dynamic rural-urban interface termed the 'peri-urban'. On the one hand, urbanization has profoundly impacted villages within the urban boundaries and resulted in a massive breakdown of local space through gradual changes in land use, economy, and social linkage. On the other hand, infrastructure works in the city have provided many job opportunities, attracting poor migrants from surrounding rural areas to move to the city. In 2010, about 35% of the population in Navi Mumbai were rural migrants. They were mainly working in labour-intensive sectors, such as quarrying.

Unprecedented urbanization in India increased existing inequalities and exacerbated urban exclusion in the context of disability to access social services and formal houses. Government interventions have been unable to respond to the exclusion appropriately, especially in the housing sector. Under the existing social housing allocation system, most quarry workers are excluded from applying for formal social housing without legal citizenship and stable incomes in the city. They have to live in self-built informal shelters which have difficulty accessing basic amenities and are exposed to high levels of risk, including pollution, dynamite blasting, and heavy industrial road traffic. In general, the dynamic socio-spatial spaces in the peri-urban area are full of multidimensional conflicts between villagers, migrants, and government officials. Fortunately, housing is a combination of domestic activities, income generation, and social linkage in the Global South. It is significant for urban development and facilitates social integration.

From an urban aspect, long-term socio-ecological urban resilience will be achieved through urban upgrading in Navi Mumbai's quarry belt. The upgrading will be divided into three phases: resettlement, urban upgrading, and ecological restoration. Focus on the resettlement phase, the proposal of the residential cluster is based on quarry workers' collective and mutual-help lifestyle. The temporality in the quarry area has also been taken into account, which may help the project adapt to the post-quarry period. Finally, a conclusion of urban-scale design principles will serve for upscaling and replicability of this project. It will guide the resettlement and upgrading of many informal settlements located in the quarry belt.

Files
Concept
Drawing: © Yiyi Lai, MSc3/4: Mixing Navi Mumbai (2021/2022)
Urban strategy
Drawing: © Yiyi Lai, MSc3/4: Mixing Navi Mumbai (2021/2022)
Master plan
Drawing: © Yiyi Lai, MSc3/4: Mixing Navi Mumbai (2021/2022)
Typologies
Drawing: © Yiyi Lai, MSc3/4: Mixing Navi Mumbai (2021/2022)
Cluster 1: concept
Drawing: © Yiyi Lai, MSc3/4: Mixing Navi Mumbai (2021/2022)
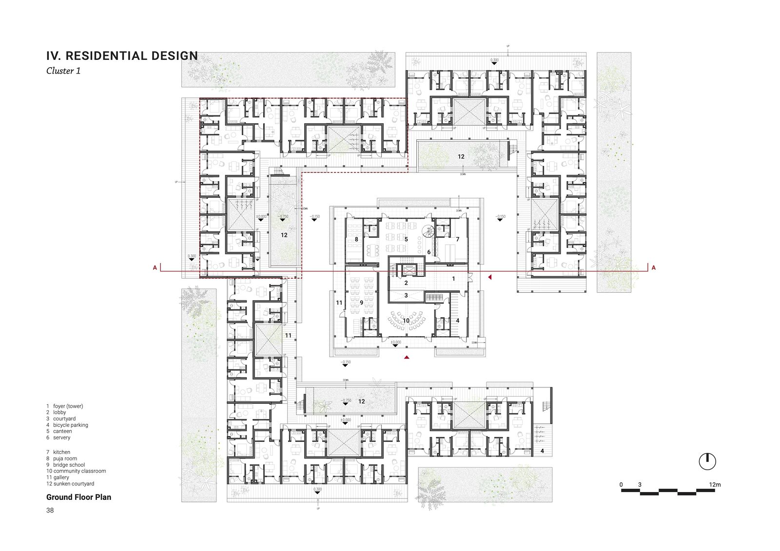
Cluster 1: floor plan ground floor
Drawing: © Yiyi Lai, MSc3/4: Mixing Navi Mumbai (2021/2022)
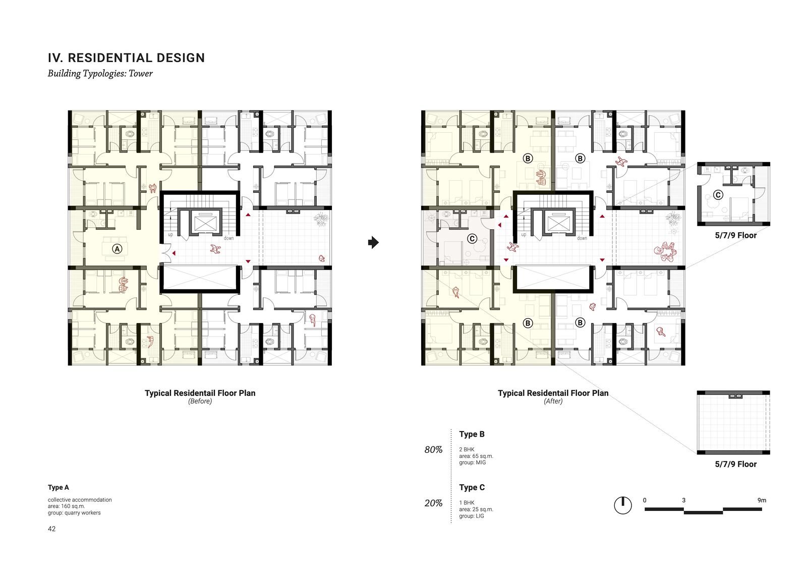
Cluster 1: typical floor plan tower
Drawing: © Yiyi Lai, MSc3/4: Mixing Navi Mumbai (2021/2022)
Cluster 1: perspective
Drawing: © Yiyi Lai, MSc3/4: Mixing Navi Mumbai (2021/2022)
Cluster 1: typical floor plan apartment
Drawing: © Yiyi Lai, MSc3/4: Mixing Navi Mumbai (2021/2022)
Cluster 2: concept
Drawing: © Yiyi Lai, MSc3/4: Mixing Navi Mumbai (2021/2022)
Cluster 2: floor plan
Drawing: © Yiyi Lai, MSc3/4: Mixing Navi Mumbai (2021/2022)
Cluster 2: perspective
Drawing: © Yiyi Lai, MSc3/4: Mixing Navi Mumbai (2021/2022)
Perspective
Drawing: © Yiyi Lai, MSc3/4: Mixing Navi Mumbai (2021/2022)
Perspective
Drawing: © Yiyi Lai, MSc3/4: Mixing Navi Mumbai (2021/2022)
Climate section
Drawing: © Yiyi Lai, MSc3/4: Mixing Navi Mumbai (2021/2022)
Facade fragment
Drawing: © Yiyi Lai, MSc3/4: Mixing Navi Mumbai (2021/2022)