Where
  • Angola, Uíge
  • Bangladesh, Dhaka
  • Bangladesh, Sylhet
  • Bangladesh, Tanguar Haor
  • Brazil, São Paulo
  • Chile, Iquique
  • Egypt, Luxor
  • Ethiopia, Addis Ababa
  • Ghana, Accra
  • Ghana, Tema
  • Ghana, Tema Manhean
  • Guinee, Fria
  • India, Ahmedabad
  • India, Chandigarh
  • India, Delhi
  • India, Indore
  • India, Kerala
  • India, Mumbai
  • India, Nalasopara
  • India, Navi Mumbai
  • Iran, multiple
  • Iran, Shushtar
  • Iran, Tehran
  • Italy, Venice
  • Kenya, Nairobi
  • Nigeria, Lagos
  • Peru, Lima
  • Portugal, Evora
  • Rwanda, Kigali
  • Senegal, Dakar
  • Spain, Madrid
  • Tanzania, Dar es Salaam
  • The Netherlands, Delft
  • United Kingdom, London
  • United States, New York
  • United States, Willingboro
When
  • 2020-2029
  • 2010-2019
  • 2000-2009
  • 1990-1999
  • 1980-1989
  • 1970-1979
  • 1960-1969
  • 1950-1959
  • 1940-1949
  • 1930-1939
  • 1920-1929
  • 1910-1919
  • 1900-1909
What
  • high-rise
  • incremental
  • low-rise
  • low income housing
  • mid-rise
  • new town
  • participatory design
  • sites & services
  • slum rehab
Who
  • Marion Achach
  • Tanushree Aggarwal
  • Rafaela Ahsan
  • Jasper Ambagts
  • Trupti Amritwar Vaitla (MESN)
  • Purbi Architects
  • Deepanshu Arneja
  • Tom Avermaete
  • W,F,R. Ballard
  • Ron Barten
  • Michele Bassi
  • A. Bertoud
  • Romy Bijl
  • Lotte Bijwaard
  • Bombay Improvement Trust
  • Fabio Buondonno
  • Ludovica Cassina
  • Daniele Ceragno
  • Jia Fang Chang
  • Henry S. Churchill
  • Bari Cobbina
  • Gioele Colombo
  • Rocio Conesa Sánchez
  • Charles Correa
  • Freya Crijns
  • Ype Cuperus
  • Javier de Alvear Criado
  • Coco de Bok
  • Jose de la Torre
  • Junta Nacional de la Vivienda
  • Margot de Man
  • Jeffrey Deng
  • Kim de Raedt
  • H.A. Derbishire
  • Pepij Determann
  • Anand Dhokay
  • Kamran Diba
  • Jean Dimitrijevic
  • Olivia Dolan
  • Youri Doorn
  • Constantinus A. Doxiadis
  • Jane Drew
  • Jin-Ah Duijghuizen
  • Michel Écochard
  • Marja Elsinga
  • Carmen Espegel
  • Hassan Fathy
  • Federica Fogazzi
  • Arianna Fornasiero
  • Manon Fougerouse
  • Frederick G. Frost
  • Maxwell Fry
  • Lida Chrysi Ganotaki
  • Yasmine Garti
  • Mascha Gerrits
  • Mattia Graaf
  • Greater London Council (GLC)
  • Anna Grenestedt
  • Vanessa Grossman
  • Marcus Grosveld
  • Gruzen & Partners
  • Helen Elizabeth Gyger
  • Shirin Hadi
  • Marietta Haffner
  • Anna Halleran
  • Francisca Hamilton
  • Klaske Havik
  • Katrina Hemingway
  • Dirk van den Heuvel
  • Jeff Hill
  • Bas Hoevenaars
  • S. Holst
  • Maartje Holtslag
  • Housing Development Project Office
  • Genora Jankee
  • Henk Jonkers
  • Michel Kalt
  • Anthéa Karakoullis
  • Hyosik Kim
  • Stanisław Klajs
  • Stephany Knize
  • Bartosz Kobylakiewicz
  • Tessa Koenig Gimeno
  • Mara Kopp
  • Beatrijs Kostelijk
  • Annenies Kraaij
  • Aga Kus
  • Sue Vern Lai
  • Yiyi Lai
  • Isabel Lee
  • Monica Lelieveld
  • Jaime Lerner
  • Levitt & Sons
  • Lieke Lohmeijer
  • Femke Lokhorst
  • Fleur A. Luca
  • Qiaoyun Lu
  • Danai Makri
  • Isabella Månsson
  • Mira Meegens
  • Rahul Mehrotra
  • Andrea Migotto
  • Harald Mooij
  • Julie Moraca
  • Nelson Mota
  • Municipality of Addis Ababa
  • Dennis Musalim
  • Timothy Nelson Stins
  • NGO Red Barna-Ethiopia
  • Gabriel Ogbonna
  • Federico Ortiz Velásquez
  • Mees Paanakker
  • Sameep Padora
  • Santiago Palacio Villa
  • Antonio Paoletti
  • Caspar Pasveer
  • Casper Pasveer
  • V. Phatak
  • Andreea Pirvan
  • PK Das & Associates
  • Daniel Pouradier-Duteil
  • Michelle Provoost
  • Pierijn van der Putt
  • Wido Quist
  • Frank Reitsma
  • Raj Rewal
  • Robert Rigg
  • Robin Ringel
  • Charlotte Robinson
  • Roberto Rocco
  • Laura Sacchetti
  • Francisco Javier Sáenz de Oiza
  • Ramona Scheffer
  • Frank Schnater
  • Sanette Schreurs
  • Tim Schuurman
  • Dr. ir. Mohamad Ali Sedighi
  • Sara Seifert
  • Self-built
  • Zhuo-ming Shia
  • Geneviève Shymanski
  • Manuel Sierra Nava
  • Carlos Silvestre Baquero
  • Mo Smit
  • Christina Soediono
  • Joelle Steendam
  • Marina Tabassum
  • Brook Teklehaimanot Haileselassie
  • Kaspar ter Glane
  • Anteneh Tesfaye Tola
  • Carla Tietzsch
  • Chiara Tobia
  • Fabio Tossutti
  • Paolo Turconi
  • Burnett Turner
  • Unknown
  • Frederique van Andel
  • Ties van Benten
  • Hubert van der Meel
  • Anne van der Meulen
  • Anja van der Watt
  • Marissa van der Weg
  • Jan van de Voort
  • Cassandre van Duinen
  • Dick van Gameren
  • Annemijn van Gurp
  • Mark van Kats
  • Bas van Lenteren
  • Rens van Poppel
  • Rens van Vliet
  • Rohan Varma
  • Stephan Verkuijlen
  • Pierre Vignal
  • Gavin Wallace
  • W.E. Wallis
  • Michel Weill
  • Julian Wijnen
  • Afua Wilcox
  • Ella Wildenberg
  • V. Wilkins
  • Alexander Witkamp
  • Krystian Woźniak
  • Hatice Yilmaz
  • Haobo Zhang
  • Gonzalo Zylberman
E Education
  • Honours Programme
  • Master thesis
  • MSc level
  • student analysis
  • student design
R Research
  • book (chapter)
  • conference paper
  • dissertation
  • exhibition
  • interview
  • journal article
  • lecture
P Practice
  • built
< BACK

A Bigger Wall

Frames of Addis Ababa

Student
Date
Keywords
Addis Ababa, wall, form, evolutionary urbanism
Images
Elevation
Drawing: © Andrea Migotto, MSc3/4 Global Housing Graduation Studio Addis Ababa
Text

The project deals with the evolving environment of Addis Ababa. It proposes an alternative way to deal with the enormous urbanization the city is undergoing. Through the inception of a new urban form, which works as entity and infrastructure, the thesis indagates the possible future development of the city.

Files
Elevation
Drawing: © Andrea Migotto, MSc3/4 Global Housing Graduation Studio Addis Ababa
Urban intervention
Drawing: © Andrea Migotto, MSc3/4 Global Housing Graduation Studio Addis Ababa
Ground floor plan: cluster
Drawing: © Andrea Migotto, MSc3/4 Global Housing Graduation Studio Addis Ababa
Axonometric view
Drawing: © Andrea Migotto, MSc3/4 Global Housing Graduation Studio Addis Ababa
Elevation
Drawing: © Andrea Migotto, MSc3/4 Global Housing Graduation Studio Addis Ababa
Perspective section
Drawing: © Andrea Migotto, MSc3/4 Global Housing Graduation Studio Addis Ababa
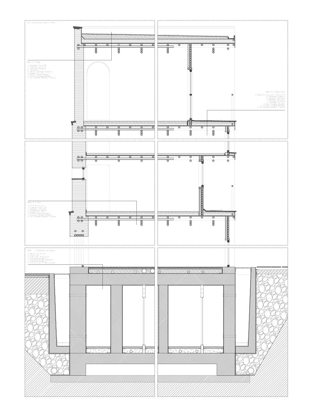
Section
Drawing: © Andrea Migotto, MSc3/4 Global Housing Graduation Studio Addis Ababa
Section
Drawing: © Andrea Migotto, MSc3/4 Global Housing Graduation Studio Addis Ababa
The wall
Image: © Andrea Migotto, MSc3/4 Global Housing Graduation Studio Addis Ababa
Street market
Image: © Andrea Migotto, MSc3/4 Global Housing Graduation Studio Addis Ababas
Urban context
Image: © Andrea Migotto, MSc3/4 Global Housing Graduation Studio Addis Ababa
Urban context
Image: © Andrea Migotto, MSc3/4 Global Housing Graduation Studio Addis Ababas
Inside the wall
Image: © Andrea Migotto, MSc3/4 Global Housing Graduation Studio Addis Ababa
Flexibility in relation with outside
Image: © Andrea Migotto, MSc3/4 Global Housing Graduation Studio Addis Ababa
Living room
Image: © Andrea Migotto, MSc3/4 Global Housing Graduation Studio Addis Ababa
Living the wall
Image: © Andrea Migotto, MSc3/4 Global Housing Graduation Studio Addis Ababa