Where
  • Angola, Uíge
  • Bangladesh, Dhaka
  • Bangladesh, Sylhet
  • Bangladesh, Tanguar Haor
  • Brazil, São Paulo
  • Chile, Iquique
  • Egypt, Luxor
  • Ethiopia, Addis Ababa
  • Ghana, Accra
  • Ghana, Tema
  • Ghana, Tema Manhean
  • Guinee, Fria
  • India, Ahmedabad
  • India, Chandigarh
  • India, Delhi
  • India, Indore
  • India, Kerala
  • India, Mumbai
  • India, Nalasopara
  • India, Navi Mumbai
  • Iran, multiple
  • Iran, Shushtar
  • Iran, Tehran
  • Italy, Venice
  • Kenya, Nairobi
  • Nigeria, Lagos
  • Peru, Lima
  • Portugal, Evora
  • Rwanda, Kigali
  • Senegal, Dakar
  • Spain, Madrid
  • Tanzania, Dar es Salaam
  • The Netherlands, Delft
  • United Kingdom, London
  • United States, New York
  • United States, Willingboro
When
  • 2020-2029
  • 2010-2019
  • 2000-2009
  • 1990-1999
  • 1980-1989
  • 1970-1979
  • 1960-1969
  • 1950-1959
  • 1940-1949
  • 1930-1939
  • 1920-1929
  • 1910-1919
  • 1900-1909
What
  • high-rise
  • incremental
  • low-rise
  • low income housing
  • mid-rise
  • new town
  • participatory design
  • sites & services
  • slum rehab
Who
  • Marion Achach
  • Tanushree Aggarwal
  • Rafaela Ahsan
  • Jasper Ambagts
  • Trupti Amritwar Vaitla (MESN)
  • Purbi Architects
  • Deepanshu Arneja
  • Tom Avermaete
  • W,F,R. Ballard
  • Ron Barten
  • Michele Bassi
  • A. Bertoud
  • Romy Bijl
  • Lotte Bijwaard
  • Bombay Improvement Trust
  • Fabio Buondonno
  • Ludovica Cassina
  • Daniele Ceragno
  • Jia Fang Chang
  • Henry S. Churchill
  • Bari Cobbina
  • Gioele Colombo
  • Rocio Conesa Sánchez
  • Charles Correa
  • Freya Crijns
  • Ype Cuperus
  • Javier de Alvear Criado
  • Coco de Bok
  • Jose de la Torre
  • Junta Nacional de la Vivienda
  • Margot de Man
  • Jeffrey Deng
  • Kim de Raedt
  • H.A. Derbishire
  • Pepij Determann
  • Anand Dhokay
  • Kamran Diba
  • Jean Dimitrijevic
  • Olivia Dolan
  • Youri Doorn
  • Constantinus A. Doxiadis
  • Jane Drew
  • Jin-Ah Duijghuizen
  • Michel Écochard
  • Marja Elsinga
  • Carmen Espegel
  • Hassan Fathy
  • Federica Fogazzi
  • Arianna Fornasiero
  • Manon Fougerouse
  • Frederick G. Frost
  • Maxwell Fry
  • Lida Chrysi Ganotaki
  • Yasmine Garti
  • Mascha Gerrits
  • Mattia Graaf
  • Greater London Council (GLC)
  • Anna Grenestedt
  • Vanessa Grossman
  • Marcus Grosveld
  • Gruzen & Partners
  • Helen Elizabeth Gyger
  • Shirin Hadi
  • Marietta Haffner
  • Anna Halleran
  • Francisca Hamilton
  • Klaske Havik
  • Katrina Hemingway
  • Dirk van den Heuvel
  • Jeff Hill
  • Bas Hoevenaars
  • S. Holst
  • Maartje Holtslag
  • Housing Development Project Office
  • Genora Jankee
  • Henk Jonkers
  • Michel Kalt
  • Anthéa Karakoullis
  • Hyosik Kim
  • Stanisław Klajs
  • Stephany Knize
  • Bartosz Kobylakiewicz
  • Tessa Koenig Gimeno
  • Mara Kopp
  • Beatrijs Kostelijk
  • Annenies Kraaij
  • Aga Kus
  • Sue Vern Lai
  • Yiyi Lai
  • Isabel Lee
  • Monica Lelieveld
  • Jaime Lerner
  • Levitt & Sons
  • Lieke Lohmeijer
  • Femke Lokhorst
  • Fleur A. Luca
  • Qiaoyun Lu
  • Danai Makri
  • Isabella Månsson
  • Mira Meegens
  • Rahul Mehrotra
  • Andrea Migotto
  • Harald Mooij
  • Julie Moraca
  • Nelson Mota
  • Municipality of Addis Ababa
  • Dennis Musalim
  • Timothy Nelson Stins
  • NGO Red Barna-Ethiopia
  • Gabriel Ogbonna
  • Federico Ortiz Velásquez
  • Mees Paanakker
  • Sameep Padora
  • Santiago Palacio Villa
  • Antonio Paoletti
  • Caspar Pasveer
  • Casper Pasveer
  • V. Phatak
  • Andreea Pirvan
  • PK Das & Associates
  • Daniel Pouradier-Duteil
  • Michelle Provoost
  • Pierijn van der Putt
  • Wido Quist
  • Frank Reitsma
  • Raj Rewal
  • Robert Rigg
  • Robin Ringel
  • Charlotte Robinson
  • Roberto Rocco
  • Laura Sacchetti
  • Francisco Javier Sáenz de Oiza
  • Ramona Scheffer
  • Frank Schnater
  • Sanette Schreurs
  • Tim Schuurman
  • Dr. ir. Mohamad Ali Sedighi
  • Sara Seifert
  • Self-built
  • Zhuo-ming Shia
  • Geneviève Shymanski
  • Manuel Sierra Nava
  • Carlos Silvestre Baquero
  • Mo Smit
  • Christina Soediono
  • Joelle Steendam
  • Marina Tabassum
  • Brook Teklehaimanot Haileselassie
  • Kaspar ter Glane
  • Anteneh Tesfaye Tola
  • Carla Tietzsch
  • Chiara Tobia
  • Fabio Tossutti
  • Paolo Turconi
  • Burnett Turner
  • Unknown
  • Frederique van Andel
  • Ties van Benten
  • Hubert van der Meel
  • Anne van der Meulen
  • Anja van der Watt
  • Marissa van der Weg
  • Jan van de Voort
  • Cassandre van Duinen
  • Dick van Gameren
  • Annemijn van Gurp
  • Mark van Kats
  • Bas van Lenteren
  • Rens van Poppel
  • Rens van Vliet
  • Rohan Varma
  • Stephan Verkuijlen
  • Pierre Vignal
  • Gavin Wallace
  • W.E. Wallis
  • Michel Weill
  • Julian Wijnen
  • Afua Wilcox
  • Ella Wildenberg
  • V. Wilkins
  • Alexander Witkamp
  • Krystian Woźniak
  • Hatice Yilmaz
  • Haobo Zhang
  • Gonzalo Zylberman
E Education
  • Honours Programme
  • Master thesis
  • MSc level
  • student analysis
  • student design
R Research
  • book (chapter)
  • conference paper
  • dissertation
  • exhibition
  • interview
  • journal article
  • lecture
P Practice
  • built
< BACK

Living with the Monsoon

An exploration of how housing design may enhance community resilience in flood prone areas in urban northern Bangladesh

Student
Date
Keywords
local materials, bangladesh
Text

Bangladesh, a riverine country shaped by the yearly monsoon, where dense cities continue to grow as people leave the flooded rural areas in search of shelter and income.

Situated along the Surma River in Sylhet, a city in the north of Bangladesh, this project explores how to design within an unfamiliar context, with the temporality of the monsoon in mind. The site, currently an informal settlement of Hindu and Muslim communities, floods each year as water flows into their houses and daily life moves onto the streets.

Acknowledging the position of being an outsider and the generations of experience in living with the monsoon, the research took a ‘learning from’-perspective. By analysing how people build, live, and adapt to the water, these practices were mapped in detail to understand patterns and principles. This became the foundation for the design; building in clusters with shared courtyards, keeping the dwellings close to the ground floor, integrating Bangladesh-specific elements into the floorplans and making room for the monsoon in the landscape. A raised plinth protects the buildings during high water, allowing life to continue even during wet season.

Rather than relying on imported resources, the design uses local materials so that the project’s investment flows directly into the community, supporting local economies and craftsmanship.

Files
Perspective
Drawing: © Joelle Steendam, MSc3/4: Architecture of Transition in the Bangladesh Delta (2024/2025)
Master plan
Drawing: © Joelle Steendam, MSc3/4: Architecture of Transition in the Bangladesh Delta (2024/2025)
Urban section
Drawing: © Joelle Steendam, MSc3/4: Architecture of Transition in the Bangladesh Delta (2024/2025)
Cluster floor plan
Drawing: © Joelle Steendam, MSc3/4: Architecture of Transition in the Bangladesh Delta (2024/2025)
Floor plan
Drawing: © Joelle Steendam, MSc3/4: Architecture of Transition in the Bangladesh Delta (2024/2025)
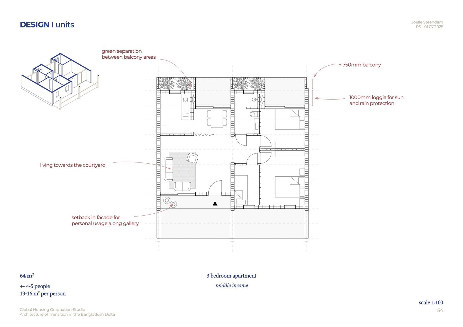
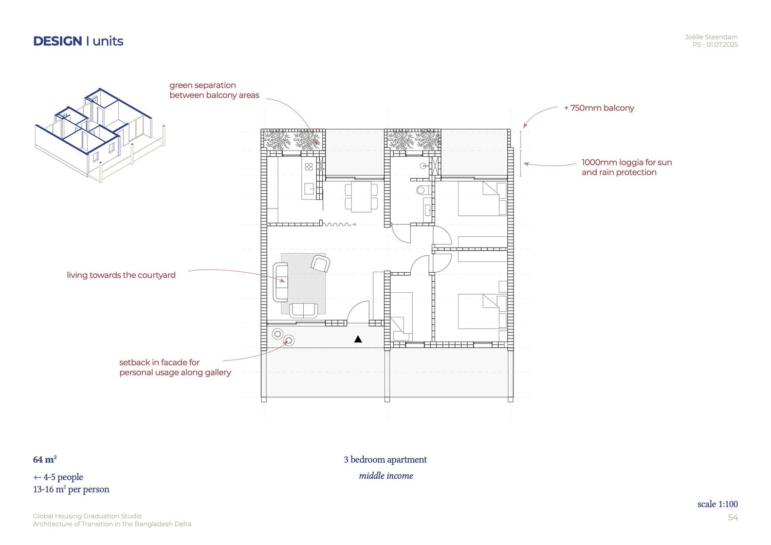
Floor plan
Drawing: © Joelle Steendam, MSc3/4: Architecture of Transition in the Bangladesh Delta (2024/2025)
Floor plan
Drawing: © Joelle Steendam, MSc3/4: Architecture of Transition in the Bangladesh Delta (2024/2025)
Floor plan
Drawing: © Joelle Steendam, MSc3/4: Architecture of Transition in the Bangladesh Delta (2024/2025)
Floor plan
Drawing: © Joelle Steendam, MSc3/4: Architecture of Transition in the Bangladesh Delta (2024/2025)