Where
  • Angola, Uíge
  • Bangladesh, Dhaka
  • Bangladesh, Sylhet
  • Bangladesh, Tanguar Haor
  • Brazil, São Paulo
  • Chile, Iquique
  • Egypt, Luxor
  • Ethiopia, Addis Ababa
  • Ghana, Accra
  • Ghana, Tema
  • Ghana, Tema Manhean
  • Guinee, Fria
  • India, Ahmedabad
  • India, Chandigarh
  • India, Delhi
  • India, Indore
  • India, Kerala
  • India, Mumbai
  • India, Nalasopara
  • India, Navi Mumbai
  • Iran, multiple
  • Iran, Shushtar
  • Iran, Tehran
  • Italy, Venice
  • Kenya, Nairobi
  • Nigeria, Lagos
  • Peru, Lima
  • Portugal, Evora
  • Rwanda, Kigali
  • Senegal, Dakar
  • Spain, Madrid
  • Tanzania, Dar es Salaam
  • The Netherlands, Delft
  • United Kingdom, London
  • United States, New York
  • United States, Willingboro
When
  • 2020-2029
  • 2010-2019
  • 2000-2009
  • 1990-1999
  • 1980-1989
  • 1970-1979
  • 1960-1969
  • 1950-1959
  • 1940-1949
  • 1930-1939
  • 1920-1929
  • 1910-1919
  • 1900-1909
What
  • high-rise
  • incremental
  • low-rise
  • low income housing
  • mid-rise
  • new town
  • participatory design
  • sites & services
  • slum rehab
Who
  • Marion Achach
  • Tanushree Aggarwal
  • Rafaela Ahsan
  • Jasper Ambagts
  • Trupti Amritwar Vaitla (MESN)
  • Purbi Architects
  • Deepanshu Arneja
  • Tom Avermaete
  • W,F,R. Ballard
  • Ron Barten
  • Michele Bassi
  • A. Bertoud
  • Romy Bijl
  • Lotte Bijwaard
  • Bombay Improvement Trust
  • Fabio Buondonno
  • Ludovica Cassina
  • Daniele Ceragno
  • Jia Fang Chang
  • Henry S. Churchill
  • Bari Cobbina
  • Gioele Colombo
  • Rocio Conesa Sánchez
  • Charles Correa
  • Freya Crijns
  • Ype Cuperus
  • Javier de Alvear Criado
  • Coco de Bok
  • Jose de la Torre
  • Junta Nacional de la Vivienda
  • Margot de Man
  • Jeffrey Deng
  • Kim de Raedt
  • H.A. Derbishire
  • Pepij Determann
  • Anand Dhokay
  • Kamran Diba
  • Jean Dimitrijevic
  • Olivia Dolan
  • Youri Doorn
  • Constantinus A. Doxiadis
  • Jane Drew
  • Jin-Ah Duijghuizen
  • Michel Écochard
  • Marja Elsinga
  • Carmen Espegel
  • Hassan Fathy
  • Federica Fogazzi
  • Arianna Fornasiero
  • Manon Fougerouse
  • Frederick G. Frost
  • Maxwell Fry
  • Lida Chrysi Ganotaki
  • Yasmine Garti
  • Mascha Gerrits
  • Mattia Graaf
  • Greater London Council (GLC)
  • Anna Grenestedt
  • Vanessa Grossman
  • Marcus Grosveld
  • Gruzen & Partners
  • Helen Elizabeth Gyger
  • Shirin Hadi
  • Marietta Haffner
  • Anna Halleran
  • Francisca Hamilton
  • Klaske Havik
  • Katrina Hemingway
  • Dirk van den Heuvel
  • Jeff Hill
  • Bas Hoevenaars
  • S. Holst
  • Maartje Holtslag
  • Housing Development Project Office
  • Genora Jankee
  • Henk Jonkers
  • Michel Kalt
  • Anthéa Karakoullis
  • Hyosik Kim
  • Stanisław Klajs
  • Stephany Knize
  • Bartosz Kobylakiewicz
  • Tessa Koenig Gimeno
  • Mara Kopp
  • Beatrijs Kostelijk
  • Annenies Kraaij
  • Aga Kus
  • Sue Vern Lai
  • Yiyi Lai
  • Isabel Lee
  • Monica Lelieveld
  • Jaime Lerner
  • Levitt & Sons
  • Lieke Lohmeijer
  • Femke Lokhorst
  • Fleur A. Luca
  • Qiaoyun Lu
  • Danai Makri
  • Isabella Månsson
  • Mira Meegens
  • Rahul Mehrotra
  • Andrea Migotto
  • Harald Mooij
  • Julie Moraca
  • Nelson Mota
  • Municipality of Addis Ababa
  • Dennis Musalim
  • Timothy Nelson Stins
  • NGO Red Barna-Ethiopia
  • Gabriel Ogbonna
  • Federico Ortiz Velásquez
  • Mees Paanakker
  • Sameep Padora
  • Santiago Palacio Villa
  • Antonio Paoletti
  • Caspar Pasveer
  • Casper Pasveer
  • V. Phatak
  • Andreea Pirvan
  • PK Das & Associates
  • Daniel Pouradier-Duteil
  • Michelle Provoost
  • Pierijn van der Putt
  • Wido Quist
  • Frank Reitsma
  • Raj Rewal
  • Robert Rigg
  • Robin Ringel
  • Charlotte Robinson
  • Roberto Rocco
  • Laura Sacchetti
  • Francisco Javier Sáenz de Oiza
  • Ramona Scheffer
  • Frank Schnater
  • Sanette Schreurs
  • Tim Schuurman
  • Dr. ir. Mohamad Ali Sedighi
  • Sara Seifert
  • Self-built
  • Zhuo-ming Shia
  • Geneviève Shymanski
  • Manuel Sierra Nava
  • Carlos Silvestre Baquero
  • Mo Smit
  • Christina Soediono
  • Joelle Steendam
  • Marina Tabassum
  • Brook Teklehaimanot Haileselassie
  • Kaspar ter Glane
  • Anteneh Tesfaye Tola
  • Carla Tietzsch
  • Chiara Tobia
  • Fabio Tossutti
  • Paolo Turconi
  • Burnett Turner
  • Unknown
  • Frederique van Andel
  • Ties van Benten
  • Hubert van der Meel
  • Anne van der Meulen
  • Anja van der Watt
  • Marissa van der Weg
  • Jan van de Voort
  • Cassandre van Duinen
  • Dick van Gameren
  • Annemijn van Gurp
  • Mark van Kats
  • Bas van Lenteren
  • Rens van Poppel
  • Rens van Vliet
  • Rohan Varma
  • Stephan Verkuijlen
  • Pierre Vignal
  • Gavin Wallace
  • W.E. Wallis
  • Michel Weill
  • Julian Wijnen
  • Afua Wilcox
  • Ella Wildenberg
  • V. Wilkins
  • Alexander Witkamp
  • Krystian Woźniak
  • Hatice Yilmaz
  • Haobo Zhang
  • Gonzalo Zylberman
E Education
  • Honours Programme
  • Master thesis
  • MSc level
  • student analysis
  • student design
R Research
  • book (chapter)
  • conference paper
  • dissertation
  • exhibition
  • interview
  • journal article
  • lecture
P Practice
  • built
< BACK

Tema Manhean

Images
Dwellings in the extension area, 2007
Photo: © Michelle Provoost
Text

In 1952, a year after Kwame Nkrumah became the first Prime Minister of what was then the British colony of the Gold Coast (now Ghana), the decision was made to build a brandnew harbour as part of the ambitious Volta River Project. 1 For the relocation of Tema, a small fishing village that stood in the way of the new development, the English office of Maxwell Fry, Jane Drew and Denys Lasdun was engaged.

Although there was a plan for a whole new city to be built on the site of the demolished village, it was decided not to incorporate the villagers in this new city. Instead, a separate settlement was designed (Tema Manhean) so that the villagers could keep their own identity while still improving their living environment. This decision caused a serious dilemma: because of its authenticity the tribe was condemned to remain an enclave of traditional living, while next door in the new Tema modern progress unfolded in all its attractiveness.

Fry and Drew developed a social and participatory hands-on approach, working in cooperation with the African chiefs. In Old Tema, they started mapping the existing fishing village spatially and socially, and examined the cultural traditions and the social structure. The process initiated for the resettlement of the villagers was remarkable, since it involved participation of the residents to a degree uncommon at that time, even in Europe. The main problems the architects encountered had to do with the power structure within the village and conflicting interests of residents, as well as discussions about identity, respect, individual versus collective interests, social structure and last but not least, money. It took seven years and some bulldozers to convince the whole community to move.

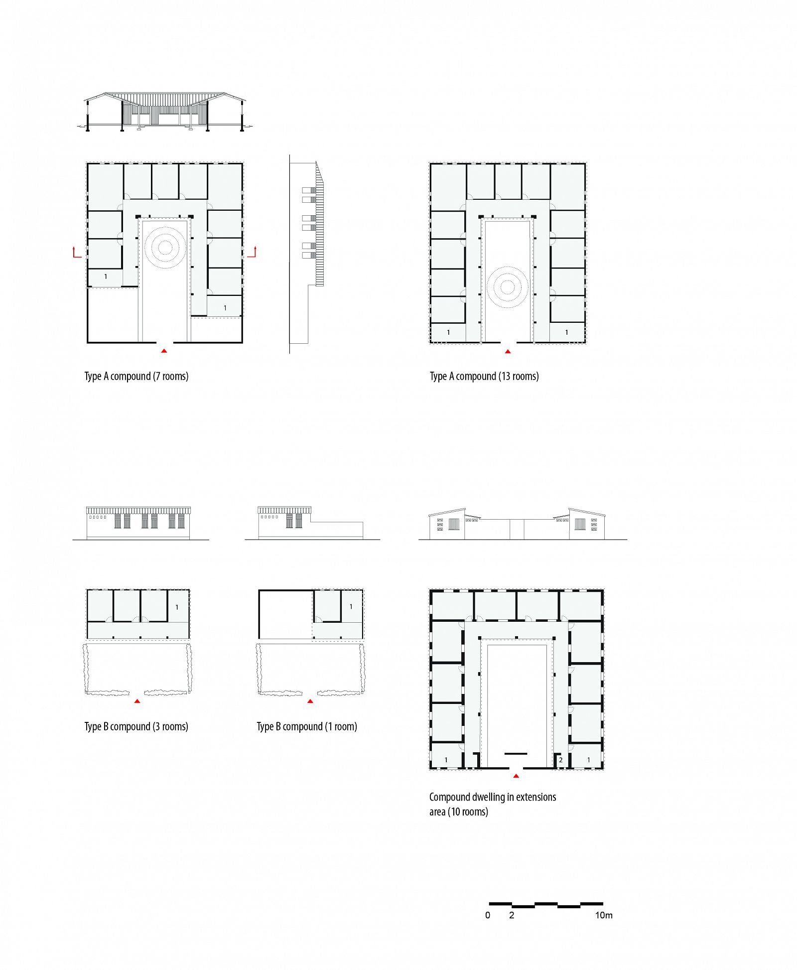
After an initial plan, which was rejected by the villagers, Fry and Drew designed the new village based on the hierarchical organization model of an English New Town. It consisted of four neighbourhoods and one central area; functions were zoned. All the institutions of the ‘modern welfare state’ were placed in the centre: the schools, shops and a marketplace, as well as the chief’s palace and a fish smoking area. The houses were designed to accommodate traditional compound-style living with extended families. Their layout was flexible, so families could enlarge the number of rooms themselves. The houses consisted of a series of repeating standard types of circular, rectangular, diamond and star shaped compounds. A sanitary block with toilets, centrally located in the neighbourhood, was shared by two or three compounds (160-600 people).The original design of the houses, of which a prototype had been built, contained a flat roof. Since the villagers deemed this to be ‘only fit for pigeons’ and not dignified enough, the design was changed into pitched roofs.

While improving the basic conditions of water supply, washing, cooking, storage, latrines and hygiene, Fry and Drew also respected the traditional family structures and dwelling habits by including social elements like the veranda. In vain they tried to maintain the indigenous building traditions; the houses were constructed in sandcrete blocks and corrugated steel roofs. However sensitive, the rather formal design of the village was not suited to all Ghanaian habits: for instance, the running of a small shop out of one’s home. Fry and Drew basically designed four living quarters, but local culture could not be denied: small shops popped up everywhere, right from the start. The inhabitants were also disappointed by their ‘authentic’ living – the houses in Tema Manhean were just as expensive as those built in Tema, but as in traditional African villages, they lacked electricity and in-house bathrooms and running water.

By now, Fry and Drew’s creation has become a slum. The choice to respect Tema village as an autonomous entity to safeguard the identity of the villagers has made the area into a ghetto: living circumstances are worse, housing and amenities are cheaper and less attractive than in Tema. The original houses are hardly recognizable between the many extensions and ‘illegal’ buildings erected between, above and around them. It is a poor, polluted area, surrounded by industry, that looks longingly at its next-door neighbour Tema, where everything seems better and more hopeful.

The Volta River Project included the building of an aluminium smelter in Tema, a huge dam in the Volta River (now: Akosombodam) and a network of power lines installed throughout southern Ghana.

Notes
  • 1
    The Volta River Project included the building of an aluminium smelter in Tema, a huge dam in the Volta River (now: Akosombodam) and a network of power lines installed throughout southern Ghana.
Files
Dwellings in the extension area, 2007
Photo: © Michelle Provoost
Location of Tema Manhean near Tema New Town
Drawing: © TU Delft, Delft Architectural Studies on Housing (DASH)
Fishing harbour of Tema Manhean with the aluminium smelter of the Volta Aluminum Company (Volca) in the background, 2007
Photo: © Michelle Provoost
Tema Manhean in 1966. The extension area (a) is not part of the Fry and Drew scheme. These houses were designed by the Architects Department of the Tema Development Corporation (T.D.C.)
Drawing: © TU Delft, Delft Architectural Studies on Housing (DASH)
Type A and B compound in Awudung
Drawing: © TU Delft, Delft Architectural Studies on Housing (DASH)
Old Tema and the two lagoons
Source: G.W. Amarteifio, D.A.P. Butcher, D. Witham, Tema Mahean: A Study of Resettlement (Accra: Ghana University Press, 1966), 56
Type A, B and 'extension area' compound dwellings
Drawing: © TU Delft, Delft Architectural Studies on Housing (DASH)
Proposal for the new development and the resettlement area of old Tema
Source: G.W. Amarteifio, D.A.P. Butcher, D. Witham, Tema Mahean: A Study of Resettlement (Accra: Ghana University Press, 1966), 56
Plan of the old village Tema with mapping of the occupation of compounds (male, female, mixed)
Source: G.W. Amarteifio, D.A.P. Butcher, D. Witham, Tema Mahean: A Study of Resettlement (Accra: Ghana University Press, 1966), 57
Old Tema
Source: Keith Jopp, Tema: Ghana's New Town and Harbour(Accra: Ministery of Information, 1961)
The prototype houses
Source: G.W. Amarteifio, D.A.P. Butcher, D. Witham, Tema Mahean: A Study of Resettlement (Accra: Ghana University Press, 1966), Plate 2
Aerial view of the extension area
Source: Keith Jopp, Tema: Ghana's New Town and Harbour(Accra: Ministery of Information, 1961)
Beach in Awudung, 1966
Source: G.W. Amarteifio, D.A.P. Butcher, D. Witham, Tema Mahean: A Study of Resettlement (Accra: Ghana University Press, 1966), Plate 1
The 'Zinc Huts'. Built as emercency accomodation in1959, these houses were still occupied in 1964. Nowadays the huts are part of the slums in the village
Source: G.W. Amarteifio, D.A.P. Butcher, D. Witham, Tema Mahean: A Study of Resettlement (Accra: Ghana University Press, 1966), Plate 7
Erosion on the beach in Awudung. Stones have been placed bt the Tema Development Company in an effort to protect the palms and houses, 1966
Source: G.W. Amarteifio, D.A.P. Butcher, D. Witham, Tema Mahean: A Study of Resettlement (Accra: Ghana University Press, 1966), Plate 10
Temporal structures in front of a 13-room house in Awudung, 1966
Source: G.W. Amarteifio, D.A.P. Butcher, D. Witham, Tema Mahean: A Study of Resettlement (Accra: Ghana University Press, 1966), Plate 15
Type A compound dwellings, 1966
Source: G.W. Amarteifio, D.A.P. Butcher, D. Witham, Tema Mahean: A Study of Resettlement (Accra: Ghana University Press, 1966), Plate 12
Inhabitants added a gate to a type A compound dwelling, 1966
Type B dwelling with an added wall on the veranda, 1966
Source: G.W. Amarteifio, D.A.P. Butcher, D. Witham, Tema Mahean: A Study of Resettlement (Accra: Ghana University Press, 1966), Plate 4
A kitchen of a type A compound converted into a shop, 1966
Tema Manhean just after completion
Source: Keith Jopp, Tema: Ghana's New Town and Harbour(Accra: Ministery of Information, 1961)
Back of a Type A compound, 2007
Photo: © Michelle Provoost
Entrance of a Type A compound, 2007
Photo: © Michelle Provoost
Courtyard of a Type A compound, 2007
Photo: © Michelle Provoost
The village has been densified with informal structures, 2007
Photo: © Michelle Provoost
Compound in the extension area, 2007
Photo: © Michelle Provoost
Documents
Michelle Provoost, 'Tema Manhean', DASH-Global Housing: Affordable Dwellings for Growing Cities (Rotterdam: nai010 publishers, 2015), 184-193
Related
Notes
Notes
  • 1
    The Volta River Project included the building of an aluminium smelter in Tema, a huge dam in the Volta River (now: Akosombodam) and a network of power lines installed throughout southern Ghana.